White House Press Corps, 1918
In light of the relationship between the press and the president, the James S. Brady Press Briefing Room holds both symbolic and functional significance.
By James A. Jacobs
Professor Emeritus of Journalism and English
Diablo Valley College
Introduction
Reporters use telephones located in the White House Press Room to call the day’s stories into their news desks, c. 1937. / Library of Congress
The James S. Brady Press Briefing Room has been the on-grounds quarters for the White House correspondents and news photographers since its construction in 1969–70. Although generally referred to as the White House Press Briefing Room, one of the early project names—the West Terrace Press Center—more accurately takes in its trio of primary functions: press briefings and conferences, workspace, and broadcasting. Authorized by President Richard M. Nixon, this facility stands as the culmination of decades of increased press presence at the White House. Its construction was both an acknowledgment that the press had become an integral part of the presidency and an effort to provide a more casual alternative for communication between the West Wing and the White House press corps. The General Services Administration (GSA) worked in collaboration with the White House and the Alexandria, Virginia, architecture and engineering firm of Vosbeck, Vosbeck, Kendrick & Redinger to complete the project, which incorporated a one-story Briefing Room installed over the swimming pool built for President Franklin Delano Roosevelt in 1933 and two floors of work and broadcasting areas to the east of the pool, toward the White House proper.
In light of the relationship between the press and the president, the James S. Brady Press Briefing Room holds both symbolic and functional significance. Its location in one of the oldest parts of the White House, nestled between the fabled residence and the West Wing, is evidence alone of the key role the news media has come to play as an intermediary between the public and the executive branch of the United States government. Indeed, the location and extent of the press quarters in history documents the evolution of this relationship over the course of the twentieth century as it was impacted by changes in technology, media, and reporting methods used by the press and the president throughout the twentieth century.
Workspace for the Emergent White House Press Corps
When the camera-shy pilot Charles Lindbergh tried to exit the White House after a visit with President Franklin Roosevelt in 1939, he found all the doors covered by news cameramen. He is seen here running the photographer’s gauntlet as he emerged from a side door of the West Wing. The location of the Press Room at the time allowed reporters easy access to the president’s visitors. / Library of Congress
Members of the press have had dedicated workspace at the White House since completion of the West Wing’s first iteration in 1902, but the type and frequency of access to the sitting president varied during the first half of the twentieth century.1 For most of the nineteenth century, newspaper reporters concentrated most of their government coverage on Congress and its activities. Presidents occasionally granted interviews or their secretaries might speak more often with favorites, but there was no specific group assigned to cover the White House. During President Grover Cleveland’s second administration (1893–97), William “Fatty” Price emerged as the first reporter known to regularly visit the White House for news stories—initially standing outside the gate waiting to query exiting visitors about their business there. President William McKinley later allowed reporters to work inside at a Second Floor corridor table, and his secretary began a long tradition of more-or-less regular press briefings that is still a primary source of news to this day.2
President Theodore Roosevelt created the first designated office for correspondents at the White House. This unprecedented step in press relations provides some support for the debated claim that he was “the first President … to develop a clear idea of press management.”3 Aside from the Press Room itself, Roosevelt’s major innovation in the press-president relationship was that he would often meet with correspondents directly in addition to daily briefings by his secretary. These meetings were not in the same realm as the later press conferences, for he “courted” particular reporters and “played to their egos” during meetings with small groups in an effort to shape favorable stories; if the result was not acceptable, Roosevelt denied future access.4 It is not a coincidence that the Roosevelt presidency can be considered a vanguard administration in its dealings with the press. In the early twentieth century, newspaper circulation increased significantly across the country, and many of the nation’s major cities opened Washington bureaus with staffs that were particularly skilled in news reporting. A 1904 publication entitled Washington Correspondents Past and Present noted: “The larges [sic] dailies, such as those of New York, Chicago, Baltimore, Philadelphia, St. Louis and Boston send their very best political writers. Many of these special correspondents have the privilege of signing their names to their dispatches and letters. These newspapers maintain offices in the northwest portion of the city, close to the departments, White House, and the leading hotels.”5
Around this time, the Washington correspondents headquartered in these dispersed offices were allotted a dedicated room in the new Executive Office Building, which has since been replaced by the enlarged West Wing. Charles McKim of the famed architectural firm of McKim, Mead & White designed the proto–West Wing as part of a comprehensive renovation and expansion campaign at the White House undertaken by Theodore Roosevelt.6 The modest workspace for the press was located just off the lobby of the new building. Although small, it provided the White House correspondents with an indoor space equipped with three telephones and strategically positioned near the president and his staff. It was located at the building’s main entrance, which, in theory, allowed for easy interception of visitors arriving for and departing from executive appointments.7 Unfortunately for the correspondents, guests of the president could also quietly proceed from another White House entrance, along the private West Terrace Colonnade, into his office, avoiding the gauntlet at the public entrance.8 Despite this built-in circumvention, Roosevelt’s assignment of a room for members of the press in proximity to himself and his staff established an unprecedented level of access and conveyed his acknowledgment of the emerging press-president relationship.
The White House correspondents remained in this workspace through the beginning of the Hoover administration, when they moved across the lobby into larger quarters with new furniture.9 The press photographers—“previously slouched on chairs in the public vestibule”—were also given a room of their own at the northwest corner of the West Terrace.10 In 1934, when the West Wing was gutted and expanded by Franklin Delano Roosevelt, the Press Room was completely rebuilt in roughly its original location, although larger.11 The new room was later described as being “equipped with desks, typewriters, direct telephone connections to the offices of the telegraphic press associations, and such recreational facilities as card and chess tables.”12 Although enlarged, the Press Room remained only a place where White House correspondents worked and waited; communication with the president and his staff for the most part occurred beyond the room.
The Press Conference and Its Need for Space
From the time of Woodrow Wilson’s administration through World War II, open presidential meetings with credentialed members of the press, or “conferences,” increasingly became a preferred form of communication. These were held mostly in the president’s office and, although each president’s approach and demeanor were distinct, evolved into something of a controlled free-for-all. By 1950, Harry S. Truman felt that the in-office press conferences had run their course and decided to move them to the ornate Indian Treaty Room in what is now known as the Eisenhower Executive Office Building. A May 1950 Washington Post article presented an impression of the Oval Office press conferences as justification enough for the move.
“The informal procedure at the conferences in the oval room of the Executive Offices, with the reporters swarming around the presidential desk, had of course certain advantages. It enabled the President to become personally acquainted with the correspondents who were covering the White House beat, it made for a certain liveliness in the character of the questions and answers, and it often elicited unexpected bits of news. But these advantages gradually vanished as the number of newspapermen, American and foreign, regularly attending the conferences began to mount into the hundreds. The oval room on conference day began to resemble a Times Square subway platform at the rush hours.”13
Truman had expressed dissatisfaction with this arrangement almost immediately upon moving into the Oval Office in 1945. His thwarted proposal to extend the West Wing southward called for an addition that would have included a large auditorium intended primarily for press conferences and briefings.14
It was five years before Truman and his staff identified and secured a location large enough and near enough the West Wing for holding regular conferences with the press. While spacious, the Indian Treaty Room did not necessarily appeal to postwar architectural sensibilities. A writer for the Washington Daily News lamented in an April 1950 article that it “resembles the interior of a Chicago meat packer’s mansion, or possibly the main reception room of a lady engaged in another business in San Francisco about the time of the earthquake.”15 The questionable decor notwithstanding, Truman saw the move to a bigger room, with seats, as an opportunity to change press conference protocol. Instead of anonymously shouting out questions from the crowd around the president’s desk, correspondents would, in the future, be required to rise and state their name and the newspaper or agency they represented before speaking.16 Because the conferences occurred outside the West Wing, correspondents no longer had quick access to the “batteries of private line telephones and PBX extensions into their respective offices.”17 When news of the move became public, the eight largest American press syndicates requested and were granted eleven PBX (private branch exchange) extensions, which were installed in booths in the corridor outside the Indian Treaty Room; the government also installed one public pay telephone.18 Dwight D. Eisenhower continued to use the room for conferences during his administration, although initiating a somewhat more rigid format for questioning and, in 1955, “permitting TV and newsreel cameramen to record his news conference on sound film for the first time in history.”19
The large table in the lobby of the West Wing, seen in 1942, was a gift from Philippine President Emilio Aguinaldo in 1934. / National Archives and Records Administration
The next administrations departed the Indian Treaty Room, with John F. Kennedy most often using the State Department Auditorium and Lyndon B. Johnson holding his news conferences in a number of different locations.20 During those years, the White House correspondents were still working out of their 1930s room, which had been augmented by six broadcast booths installed in a small adjacent space entered from the central lobby. With Kennedy’s arrival, the Press Room received its first cosmetic renovation since 1934 in the form of new and more numerous desks and a coordinated paint scheme.21 A credentialed Evening Star writer described the Press Room environment in 1964 while on assignment covering a White House event.
“We made a right turn into the press room where the glamorous White House correspondents live and have their being—that is when they are not on the road with the President. . . . The room is lined on either side, and up and down the center, by rows of cubicles large enough for a desk, typewriter, telephone and even a correspondent—if he isn’t very much overweight.”22
This observation not only provides a welcome account of what the West Wing Press Room looked like near the end of its life but also gives some sense of the way in which the working lives of the White House correspondents and news photographers were changing by the 1960s.
Once Kennedy made the milestone first press conference broadcast live on television in 1961, the location and environment for those conferences became less fixed. Expanded jet travel more frequently took the president and members of his staff on the road, with correspondents in tow to report on the travel and associated conferences outside of Washington. It became clear to presidential advisers by at least the Johnson administration that staging press conferences outside Washington was a savvy idea. Not only would the conference get coverage from White House correspondents and news photographers making the trip with the president, but the local media also tended to give far more attention to the event than it would otherwise garner in the national capital.23 Although formal press conferences in Washington still took place, the flexibility offered by mass communications, fast long-distance travel, and mobile White House correspondents and news photographers contributed to a shift in how information passed between the West Wing and the press. This shift affected the design and intent of the White House Press Center and its later changes.
The large table in the lobby of the West Wing provided a convenient place for reporters to store their coats and hats in 1942. / National Archives and Records Administration
Advances in communication and transportation lent greater flexibility to where press conferences could be scheduled; at the same time, the character of those still held in Washington also changed because of a steady increase in the number of White House correspondents and news photographers. A 1970 Washington Post article summarized the evolution.
“With the much larger Washington press corps, the situation has changed drastically since FDR held conferences in his office, or even since Presidents Truman and Eisenhower held them in the Indian Treaty Room. . . . Today any presidential news conference announced even an hour in advance will draw several hundred reporters, more than can fit into any available White House space but the East Room, where the televised conferences are held. With several hundred reporters present, any informality the President may have desired is lost.”24
The spacious press room provided a welcome change from crowded gatherings of reporters around the President’s desk in the Oval Office as seen in 1945. / National Archives and Records Administration
Increased numbers reduced informality; so, too, did television, whose programming dictated a set amount of time and somewhat rigid structure for each conference. These general trends and a well-known, mutually antagonistic relationship with the press led Richard Nixon to curtail the number of televised press conferences.25 His decision to construct a new Press Center seems to have been in part an effort to facilitate greater interaction between him and the Washington correspondents without increasing the number of formal conferences. At the time of its opening, the New York Times reported that the president “has privately expressed a wish to use the new briefing room for informal chats and news conferences,” a sentiment echoed by the Washington Post: “Presidential aides report that Mr. Nixon will continue to hold occasional televised conferences and will from time to time drop into the new briefing room to hold more informal conferences without the intrusion of television.”26 With the stated desire to bring the White House correspondents nearer to him in an environment that might encourage casual interaction, Richard Nixon authorized the design and construction of a new and modern press facility in the West Terrace.
The West Terrace Location
The White House Press Center was the latest use of space in the West Terrace, one of two, one-story wings conceived by Thomas Jefferson as extensions to the Executive Residence, not unlike the ones he had earlier built at Monticello. Construction of what came to be known as the East and West Terraces began in 1805.27 While never fully realizing Jefferson’s scheme, the terraces were a functional triumph and afforded successive administrations the space to accommodate needs as they arose. At the time of the Press Center construction, the West Terrace was principally composed of a flower room renovated in 1962, a sauna built in 1969 at the beginning of the Nixon administration, and, most notably, an indoor swimming pool and its associated changing or “massage” rooms and mechanical equipment installed in 1933 to provide some relief to President Franklin D. Roosevelt’s physical handicaps.28 At the end of September 1969, the White House announced that President Nixon had decided to deck over the swimming pool inside the West Terrace in an effort “to provide expanded quarters for the press corps.”29
A combination of spatial and functional factors shaped this decision in addition to Nixon’s relationship with the press. The inadequacy of the West Wing Press Room, described around the time that the new facility opened as “a cramped room off the visitors’ lobby,” was a major factor.30 Despite a recent renovation, the room had quickly become too small for the burgeoning White House press corps.31 After having occupied the executive offices for more than half a year, Nixon’s staff realized they needed additional workspace in the West Wing. In particular, Henry Kissinger, Nixon’s national security adviser, required something better than a basement office with no reception area for meeting with ambassadors and other callers.32 The underused swimming pool in the West Terrace offered an ideal solution for both problems; since occupying the White House, Nixon had rarely used it. In its stead, the press would move to spatially and functionally enlarged quarters in a location still near the president, and members of his staff would be free to take over a considerable piece of valuable West Wing real estate.
Presumably comprehending not only FDR’s sustained popularity in the American psyche, but also that the swimming pool, which had been paid for by public subscription, was one of his better-known physical legacies remaining at the White House, Nixon moved the idea forward delicately. Randall Vosbeck, one of the architects of the Press Center, recalled: “We were told in no uncertain terms that Nixon did not want any harm done to the pool, and the design of the Press Room must be done in such a way that the pool could be restored easily, apparently in case he received comments that he had destroyed the FDR pool.”33 From the very first public announcement, it was repeatedly made clear that the changes would be reversible should a later administration desire to use the pool again. Even Nixon’s brief remarks at the opening of the facility made such a reference: “All the pool equipment is preserved and in storage if a future President wants to put the press outside again.34 Concern over public relations for the project also extended to the legacy of another revered Democratic president—John F. Kennedy. In 1962, he oversaw the cosmetic renovation of the pool area, which included the installation along three walls of a large mural by artist Bernard Lamotte depicting the harbor at Christiansted, Saint Croix, U.S. Virgin Islands.35 Period press and Nixon’s opening-day speech clearly stated that the murals, which had been a gift from Kennedy’s father, had been preserved and were in storage.36 Perhaps because of his preemptive explanations, Nixon’s proposal appears to have generated no major controversy, although the White House press corps would have had little incentive to say anything that might impact plans for its quarters.37
A ground floor plan made in 1943 shows the location of the Press Room in the northwest corner of the West Wing and the swimming pool in its original location at the center of the West Terrace. / The White House Collection
The swimming pool area represented a major portion of what became the new facility; space was also gained from adjacent rooms and a new basement. The Briefing Room proper corresponded more or less to the large room that housed the swimming pool and its small deck, which were covered over with a wood floor. The work areas, broadcasting booths, and lounges occupied a two-story area immediately to the east. A handful of rooms with different functions were eliminated for the ground floor portion. Just beyond the pool to the east were the men’s and women’s changing rooms, which according to period newspapers articles had also functioned as “massage” rooms.38 Four months into his administration, Nixon had a “sauna bath” installed in a portion of the changing room area; the Press Room construction displaced this sauna, which was reinstalled at Camp David.39 Next along the line was the “flower shop,” which had been completely renovated and updated by First Lady Jacqueline Kennedy in 1962. This was where the flower arrangements were created for daily and special events for the White House. The final room given over to the upper level of the press quarters was a dog kennel.40
The lower-level workspace and broadcasting booths of the facility were situated in a new basement. Initially planned to encompass only a single story, the November 1969 discovery of below-grade rooms dating from the West Terrace’s earliest history prompted an expansion of the project’s scope.41 Period newspaper articles reported that experts suggested the two rectangular cellar rooms had originally been used for storage of coal or fodder and the cylindrical one, or “silo,” “could have been a water storage tank.”42 On his own plans of the terraces, Thomas Jefferson indicated that the silo was built for use as an icehouse.43 By the mid-twentieth century, the three spaces had ceased functioning in any practical manner as they had been in-filled with dirt in some previous time; this in-fill, however, did preserve an array of nineteenth-century artifacts unearthed by workers as they continued excavating. The objects dated mostly from a period spanning the Franklin Pierce and Ulysses S. Grant administrations; these were collected and cataloged by James Ketchum, the White House curator.
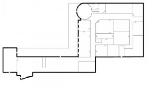
A plan of the West Wing, c. 2014, shows the current location of the Press Corps Offices, Press Briefing Room, and Press Staff Offices in the West Terrace, which were built over the swimming pool during the Nixon administration. Offices for the president’s advisers are now in the former location of the Press Room. / WhiteHouse.gov
Despite knowledge at the time that the wall fragments and vaulting likely dated back directly to Jefferson, the remnants were not viewed as salvageable historic fabric or at least not so important that they should be retained at the expense of an expanded concept for the Press Center. Indeed, notice of likely revisions to the plan accompanied breaking reports about the discovery, as reported in an Evening Star article entitled “Vintage 1800s: White House Rooms Found Under Pool,” which stated: “White House aides said the discovery has caused some ‘replanning and rethinking.’ . . . ‘We’re playing around with this new space and doing some replanning,’ one aide said. ‘We don’t know what’s going to come out of it all now.’”44 The Truman reconstruction of the Executive Residence established a precedent for subterranean expansion as a way to augment space while retaining the historic appearance of the White House ensemble if not necessarily its historic fabric. A lower level would double the workspace for members of the press with no obvious exterior changes. It is quite possible that Nixon also backed this enlargement precisely so that the pool might later be reopened—only the briefing room portion of the new facility would be lost with such a reversion and the press could continue working in its bi-level home next door.
The Design of the Press Center
While it was reported that Richard Nixon had the Press Center “prepared to his own specifications”45 and his Press Secretary Ronald Ziegler “helped design the quarters,”46 the facility also involved the ideas and energies of a number of government and private-sector professionals. The GSA oversaw the entire project and acted as liaison between the White House and the other parties. Founded in 1949, GSA was in part created to manage government buildings and the space needs of federal agencies. It is one of the governmental entities collectively responsible for the function and maintenance of the White House complex. GSA hired Alexandria, Virginia, architects Randall Vosbeck and William Vosbeck to work with the agency on realizing the project, as noted in a 1970 Washington Post article: the “new [press] quarters . . . were designed by Alexandria architects Vosbeck & Vosbeck for the General Services Administration to White House specifications.”47
Brothers Robert Randall Vosbeck (b. 1930) and William Frederick Vosbeck Jr. (b. 1924) established an architectural practice in 1962.48 Both had earned degrees in architecture from the University of Minnesota. In 1967, they merged their office with the Arlington engineering firm of Kendrick & Redinger, forming Vosbeck, Vosbeck, Kendrick & Redinger.49 Although the 1970 Washington Post article mentioned only “Vosbeck & Vosbeck,” the larger firm existed at the time of the Press Center project.50
Randall Vosbeck explained in 2007 that, at the time of this commission, the firm “was making a name for itself, and were doing a variety of work in the DC area.”51 This mentioned “variety” seems to relate to both building type and aesthetic approach. For example, in the 1960s the firm designed neo-traditional buildings for Tavern Square in Alexandria, Virginia, a controversial block-size redevelopment around historic Gadsby’s Tavern. About the same time, the firm was also involved with the near-total Modern reconstruction of Arlington, Virginia’s, Rosslyn area, which was launched in 1961.52 Among their more prominent designs during their early period were buildings for George Mason College (now University), a high-rise office building for Fairfax County, and an addition for the Charles Barrett Elementary School in Alexandria, for which the firm won a local design award.53 The Press Center was one of a number of White House projects the firm completed for GSA around that time. Randall Vosbeck could not recall in 2007 exactly why GSA chose his firm but observed that “we were doing quite a bit of government work back then.”54
President Nixon ensured no harm was done to the swimming pool (seen here during the Kennedy administration) when it was decked over to provide greatly expanded space in the West Colonnade for the White House press corps in 1970. / The White House Collection
As the plans moved forward, Randall Vosbeck recollected, “most of our design meetings were with GSA staff, but we did meet on several occasions with Press Secretary Ron Ziegler,” and at least once “with representatives from the networks who had booths at the rear and had some technical requirements.”55 This necessary collaboration, the absolute physical limitations of the space, and the functional needs of the White House correspondents and news photographers contributed to what Nixon felt was a slower-than-expected construction schedule.
Work was interrupted in late 1969 by the discovery of the underground rooms from Thomas Jefferson’s time and their subsequent excavation. The curved stone wall may show what remained of Jefferson’s ice house. / The White House Collection
Approximately six months passed between the public announcement of the planned facility and its completion. In January 1970, the Washington Post suggested that the president believed there had already been “months of delay” with construction.56 Randall Vosbeck provided later confirmation of this report, observing: “I was involved with a brief meeting on the site with Nixon, who was a little upset that the construction was moving so slow.”57 Although it is not known what timetable the president was initially presented for the project, progress was interrupted by the November 1969 discovery of the Jefferson-era underground rooms and their subsequent excavation as well as the additional time needed to expand the plans to include a lower level.
The Press Center as Completed
The president welcomed the press corps to its new, “pubby-clubby” quarters on April 2, 1970.58 It would take four more days before the White House revealed its full cost of $574,000, but the first descriptions—likening the space to anything from a pub to a posh hotel lobby—made it clear that the facility was very nicely appointed.59 The New York Times commented that it was “part fancy hotel lobby, part English taproom,” while The Washington Post observed that the “new press briefing room with a built-in stage and spotlights resembles the lobby of a fake Elizabethan steak house when the stage is hidden behind curtains.”60 The “ye olde” theme of the decoration and furnishings of the Briefing Room proper was no accident. Judith Farrington, “the government’s interior designer . . . on loan from the General Services Administration to supervise the White House project,” referred to the concept as “English pubby.”61 A White House press release noted that the decor was “developed from English and early American Public Houses and Inns.”62 Beige suede Chesterfield sofas, burnished tin coffee tables, reproduction antique chairs, ginger jar lamps, colonial molding and paneling, and thick curtains and carpeting all worked in concert to give the impression of an opulent and rarified, masculine environment appropriate for those (mainly male) members of the press holding a much-sought-after White House post.63 This environment was purposefully planned to create a comfortable stage set for what was hoped would be a more laid-back relationship between top White House officials and the press.
Workers begin to frame in the new press corps facility in the White House. Work was interrupted in late 1969 by the discovery of the underground rooms from Thomas Jefferson’s time. / The White House Collection
While on a tour of the new facility only days after its opening, former President Lyndon Johnson is reported to have commented that the Press Room is “a wonderful improvement,” and chided the press by asking, “Is there the same improvement in the stories?”64 Perhaps thinking that the elegant space was not enough to convince the press that he at least superficially desired to facilitate greater communication (and, hopefully, “improvement in the stories”), cut flowers “as beautiful as any of the floral arrangements that adorn the Red, Green and Blue Rooms for formal parties” were to be placed throughout the Briefing Room daily on “President Nixon’s personal instruction.”65
As the most public space and with no precedent in earlier quarters, the Briefing Room unsurprisingly received the most media attention. It was, however, only one-third of the total facility; the remainder was fully equipped to serve the modern needs of the White House correspondents and news photographers. A 1971 study of reporting in the national capital provided a description of the then brand-new press quarters beyond the Briefing Room.
“The new press facilities provide multiple-room space on two levels for reporters’ desks, direct-line telephones, broadcast booths, two comfortably furnished lounges, coin venders for snacks and drinks, and other comforts and conveniences. Glass-partitioned rooms or booths are built-in for the Associated Press, United Press International, and the major foreign news agencies, and newspapers that maintain full-time staff for reporters at the White House. Desks and telephones are available for reporters who appear there on a part-time basis.”66
President Nixon first welcomed reporters to the new Press Room and work space in April 1970. Interior designer Judith Farrington described the concept as “English pubby.” The masculine decor and laid-back ambience was fitting for the nearly all-male press corps of the time. / The White House Collection
A newspaper article covering the facility’s opening counted twelve enclosed broadcast booths and forty desks arranged throughout “two working press rooms” on the two floors.67 As first assigned, American networks and wire services had the pick of the “big, glassed-in booths,” while major newspapers and foreign news services, such as Reuters and Agence France-Presse, received large carrels with file drawers and individual telephones.68 A 1981 book on the presidency and the news media detailed the major American networks’ portion of the space: “Reporters for the three national television networks may be found in three long but narrow booths, each of which has a rear compartment that may be shut off and used as a sound studio for radio broadcasts. The booths are located at the back of the area that the White House staff has set aside for reporters to work in.”69 Outside these booths, the north wall of the upper workroom was fitted with telephones in groups of three between the windows and a row of eight further along, all of which included ledges for writing and leaning. These phones were allotted to representatives of smaller newspapers.70 Enclosed booths on the lower level were allocated mainly to radio broadcasters, with much of the remaining space on that level given over to work carrels.
Two smaller lounge areas provided places to take a break, rest, or wait for the next piece of news. The one on the upper level contained a snack bar, which “alone makes [the] move worthwhile for the press, who have served through many a lunchless and dinnerless day of crisis with only a soft drink machine to sustain them.”71 In addition to soft drinks, the vending lounge included a machine for sandwiches and one for snacks as well as “fresh-made coffee at all hours in glass pots.”72 This area occupied space in an irregular extension to the north that corresponds with the three easternmost bays of the West Terrace. Restrooms and a secondary stair down to the lower level were also positioned in this extension. Constructed in the mid-1940s, the one-story addition had been built up against and incorporated an existing wall enclosing the below-grade, L-shaped court at the northwest corner of the Executive Residence.73 The north wall of the extension was curved to follow the contour of the driveway. In plan, it seems a conspicuous protrusion, but its below-grade location largely masks a low-lying profile with a roof that is several feet below that of the West Terrace roof. The other small lounge was located on the lower level. A period photograph of this lounge, situated at the foot of the principal stair, shows a space with a relaxed arrangement of casual furniture and a drinking fountain, the “family room” foil to the formal “living room” atmosphere of the Briefing Room upstairs. Ashtrays are conspicuously evident in every historic image—from the Briefing Room to the desks and telephone ledges to the lounge area—recording smoking’s social acceptability and one strategy for managing a high-stress job.
This contact sheet shows a collection of photographs taken in 1970 of the newly finished multiple room space that included desks for reporters, telephones, broadcast booths, and two comfortable lounges with ashtrays, and vending machines. / The White House Collection
Although reporters were certainly impressed with their new quarters, it seems that the facility neither improved access nor increased communication to a point that satisfied members of the press. Only months after its opening, Nixon was advised by the White House Correspondents Association that the best way to “improve his press conferences” was to schedule more of them, advice that ultimately went unheeded.74 In the end, the Briefing Room came to be used primarily for the purpose indicated by its name—daily news briefings by the press secretary, with occasional visits by the president and other members of his staff for more formal, televised conferences. The less casual nature of the Briefing Room space as it came to be used over the course of its first decade was physically codified during the Reagan administration, when couches and movable lounge furniture and a retractable dais were replaced with a permanent stage and podium and fixed auditorium seating. Electrical and communications wiring to support changes in broadcast technology and computing also had to be, sometimes inelegantly, run throughout the facility. These changes and the wear and tear of intensive daily use took its toll by the 1990s. In 1997, the Washington Post referred to the White House Press Center as being “among the dingiest dumps in Washington,” a far fall for a facility once heralded as “probably the fanciest governmental press room anywhere.”75 The James S. Brady Press Briefing Room, renamed by Bill Clinton in 2000 to honor Ronald Reagan’s press secretary who had been shot and paralyzed during an attempt on Reagan’s life in 1981, was entirely gutted and reconstructed in 2006–7. The reconstructed spaces maintain the basic spacial character and functions of the original Press Center.
James S. Brady Press Briefing Room in 2009. / The White House Historical Association
The construction of a spacious and modern Press Center in the West Terrace was the clearest indication of the centrality that the news media had attained by the mid-twentieth century in reporting on national issues as put forth by the executive branch of the United States government. The ability of the press to shape public opinion about these activities had long been acknowledged by the White House. Yet the growth of the press corps assigned there and the explosion of print, television, and radio news coverage (and consumption) in the decades following World War II made the necessity of an expanded and equipped facility all the more urgent for everyone with a stake in the news. The Press Center has ably served its functions for nearly half a century with no major alterations to Nixon’s essential layout, and, likewise, it remains an essential tool of the modern presidency.
Notes
- President William McKinley included press facilities in an unrealized (c. 1900) expansion of the White House designed by Colonel Theodore Bingham. William Seale, The President’s House: A History, 2nd ed. (Washington, D.C.: White House Historical Association, 2008), vol. 2, caption for image 79.
- Seale, President’s House, 1:663; W. Dale Nelson, Who Speaks for the President? The White House Press Secretary from Cleveland to Clinton (Syracuse, N.Y.: Syracuse University Press, 1998), 14. For summaries of press and president relations, see Helen Thomas, Front Row at the White House: My Life and Times (New York: Scribner, 1999), 124–25; Arthur H. Koonce, “Press Conference,” The Mayflower’s Log (November 1944), clipping in White House–Press Relationship, 1800–1959 folder, Washingtoniana Division, Martin Luther King Memorial Library, Washington, D.C.
- Herbert Corey, “The Presidents and the Press,” Saturday Evening Post, January 9, 1932, 100; see also Seale, President’s House, 662.
- Carolyn Smith, Presidential Press Conferences: A Critical Approach (New York: Praeger, 1990), 22–23.
- Ralph M. McKenzie, Washington Correspondents Past and Present: Brief Sketches of the Rank and File (New York: Newspaperdom, 1903–4), 7–8.
- Although initially intended as only a temporary space solution while seeking additional support from Congress for permanent offices, McKim’s Executive Office Building was ultimately retained and, in 1909, expanded under President William Howard Taft. This addition to the south nearly doubled the interior square footage and, in a nod to the similarly shaped and positioned rooms in the Executive Residence, created the first “oval office” for the president. The Press Room remained intact and in its original location off the entrance lobby on the north. Seale, President’s House, 1:630, 2:17–21; The Architecture of the West Wing of the White House (Washington, D.C.: Executive Office of the President, 1995), 3.
- Nelson, Who Speaks for the President?, 19.
- Seale, President’s House, 1:663.
- Nelson, Who Speaks for the President?, 47–48.
- Ibid. For location, see historic plans of the West Terrace located in the Records of the Office of the National Park Service Liaison to the White House, Main Interior Building, Washington, D.C.
- Architecture of the West Wing, 4.
- F. B. Marbut, News from the Capital: The Story of Washington Reporting (Carbondale, Ill.: Southern Illinois University Press, 1971), 179.
- “President and Press,” Washington Post, May 2, 1950, clipping in White House–Press Relationship, 1800–1959 folder, King Library.
- Seale, President’s House, 2:254–59. Although initially having congressional support for the expansion, a public relations disaster derailed the project after Lorenzo S. Winslow, architect for the expansion, in a radio interview referred to the project as an “addition” to the White House. Ibid., 2:256.
- Laurence Greene, “President’s Declamations Ran Second to New Decor,” Washington Daily News, April 28,1950, clipping in White House–Press Relationship, 1800–1959 folder, King Library.
- For new protocol, see ibid.; “President and Press”; “Truman Shifts News Sessions to Room in State Department,” Washington Star, April 21, 1950; S. Marvin Ely, “Telephone Service for White House Press at New Location,”Transmitter, May–June 1950, clippings in White House–Press Relationship, 1800–1959 folder, King Library.
- Ely, “Telephone Service.”
- Ibid.
- “White House Press Parleys Opened to TV and Newsreel,” Washington Star, January 19, 1955. See also James Y. Newton, “Eisenhower Sets 5 ‘Firsts’ in Seeing Press,” Washington Star, February 17, 1953; Mary McGrory, “All Is Not Gold That Litters Walls of Press Parley Room,” Washington Star, January 20, 1955, clippings in White House–Press Relationship, 1800–1959 folder, King Library.
- “The President and the Press: FDR’s First Press Conference, March 1933,” White House Historical Association, Classroom: Primary Documents, available online at www.whitehousehistory.
- Phil Casey, “Shabby White House Press Room Is Spruced Up in ‘Frontier’ Green,” Washington Post, April 1, 1961, clipping in White House–Press Relationship, 1960–69 folder, King Library. The General Services Administration seems to have undertaken another renovation of the West Wing Press Room in 1965, as indicated on blueprints held by the Public Buildings Service of the GSA, Washington, D.C.
- Frances Lide, “Some Say It’s the Best Beat in Town,” Washington Star, November 29, 1964, clipping in White House–Press Relationship, 1960–1969 folder, King Library.
- Michael Baruch Grossman and Martha Joynt Kumar, Portraying the President: The White House and the News Media (Baltimore: Johns Hopkins University Press, 1981), 89.
- Carroll Kilpatrick, “A New Pressroom for White House,” Washington Post, March 31, 1970, A18.
- Nelson, Who Speaks for the President?,174. Nixon held seventeen news conferences in his first twenty-two months in office, as compared with forty-six for Eisenhower, his Republican predecessor. Kilpatrick, “New Pressroom,” reported that Nixon held “less than a dozen news conferences” in his first fourteen months.
- Robert R. Semple Jr., “For White House Press, Currier & Ives with Muzak,” New York Times, April 3, 1970, 22; Kilpatrick, “New Pressroom.”
- The present East Terrace is a total, early twentieth-century reconstruction of the original, which was lost in the nineteenth century. For a thorough discussion of the East and West Terraces, see Travis McDonald, “The East and West Wings of the White House: History in Architecture and Building,” White House History, no. 29 (Summer 2011): 44–87.
- Dorothy McCardle, “After Nine Years, Sudden Fame: Flowers Are Canvases for White House Experts,” Washington Post, August 19, 1962, White House–1961–63 folder, King Library. For the flower room renovation, see Isabelle Shelton, “Sauna Bath Moves from White House to Camp David,” Washington Star, October 19, 1969, clipping in the files of the Office of the Curator, The White House, Washington, D.C.
- Wauhillau La Hay, “Newsmen Sink White House Pool,” Washington Daily News, September 30, 1969, clipping in the Office of the Curator, The White House.
- Semple, “White House Press.”
- Don Oberdorfer, “Plushier Place for the White House Press,” Washington Post, April 3, 1970, B1; Casey, “Shabby White House Press Room.”
- Kilpatrick, “New Pressroom”; Isabelle Shelton, “Nixon Treats the Press to Luxury,” Washington Star, n.d. [April 1970], White House–1971, Additions and Alterations folder, King Library.
- R. Randall Vosbeck to James A. Jacobs, electronic correspondence, June 25, 2007.
- “Remarks of the President upon the Opening of the New Briefing Room,” April 2, 1970, press release, copy in Office of the Curator, The White House. See also “Nixon May Make Pool a Press Area,” Washington Post, September 26, 1969, A6.
- “Art Takes a Plunge in White House Pool,” Washington Post, August 16, 1962, B3; “A Rare View of the President’s Swimming Pool,” Washington Star, May 30, 1965, clipping in White House—1964–71 folder, King Library.
- La Hay, “Newsmen Sink White House Pool”; Shelton, “Sauna Bath Moves.” Isabelle Shelton claimed that the White House weighed the option of leaving the mural in the new Press Briefing Room, but decided against it because they felt it would be “in too much danger from cigarettes.” The mural, returned to the Kennedy family, was later donated to the John F. Kennedy Library and Museum in Boston, Massachusetts.
- At least one person took issue with Nixon’s plans. A letter from W. D. Lillard, Charlotte, N.C., to the editor published in the Washington Post on October 9, 1969, read in part: “It was very disturbing to hear recently that the President plans to concrete over or eliminate the White House pool and make additional room for the press corps, although I understand his physician would like for him to use it. We realize President Nixon prefers salt water, but the next occupant may not be able to afford homes in Florida and California and will desire the facilities of an indoor pool.” “White House Pool,” Washington Post, October 9, 1969, clipping in White House—1964–78 folder, King Library.
- Shelton, “Nixon Treats the Press to Luxury”; “Remarks of the President upon the Opening of the New Briefing Room.”
- Shelton, “Sauna Bath Moves.”
- Semple, “White House Press”; “Remarks of the President upon the Opening of the New Briefing Room.”
- Michael Kernan, “White House Archeology,” Washington Post, November 25, 1969, B:1–2; “White House Has Hidden Rooms,” Washington Daily News, November 24, 1969; Margery Elsberg, “White House Dig Unearths China Shards from the Pierce Administration,” Washington Daily News, November 25, 1969, clippings in White House—1964–71 folder, King Library.
- Kernan, “White House Archeology.”
- See McDonald, “East and West Wings,” 60, for Jefferson’s plan.
- “Vintage 1800s: White House Rooms Found Under Pool,” Washington Star, November 24,1969, clipping in the Office of the Curator, The White House.
- Quoted in Don Oberdorfer, “Nixon Shows LBJ New Press Room: He Doubts Stories Will Improve,” Washington Post, April 7, 1970, A4.
- Quoted in Semple, “White House Press.”
- Oberdorfer, “Plushier Place for the White House Press.”
- “Vosbeck, Robert Randall,” and “Vosbeck, William Frederick, Jr.,” American Architects Directory (New York: R. R. Bowker for the American Institute of Architects, 1970), 953.
- “Firms Merge in Virginia,” Washington Post, November 11, 1967, C3.
- Oberdorfer, “Plushier Place for the White House Press”; Vosbeck to Jacobs, June 25, 2007.
- Vosbeck to Jacobs, June 25, 2007.
- Wolf Von Eckardt, “Martini Crowd Restoring Area Hallowed by Madeira,” Washington Post, March 14, 1965, E2; John B. Willmann, “Building Pace Still Sizzles in Rosslyn,” Washington Post, June 29, 1968, C1.
- Richard F. Heyer, “Colonial vs. Contemporary,” Washington Post, July 19, 1969, E20; Richard F. Heyer, “Mason Library’s Spacial [sic] Flow,” Washington Post, September 27, 1969, D8; Myra MacPherson, “Awards for Excellence in Architecture,” Washington Post, November 18, 1971, C1.
- Vosbeck to Jacobs, June 25, 2007.
- Ibid.
- Don Oberdorfer, “The Presidency: Still Very Private After First Year,”Washington Post, January 18, 1970, A1.
- Vosbeck to Jacobs, June 25, 2007.
- Quoted in Stuart H. Loory, “Tass Miffed by Cramped Press Area,” Washington Post, April 5, 1970, clipping in White House–Press Relationship, 1970–71 folder, King Library. The opinion of Tass, “the official Soviet government news agency,” did not relate to the Press Center as a whole but rather to its assigned workspace, described as “only a telephone on the wall and a small area on a common counter with many small American newspapers.”
- Oberdorfer, “Nixon Shows LBJ.”
- Semple, “White House Press”; Oberdorfer, “Plushier Place for the White House Press.”
- Quoted in Shelton, “Nixon Treats the Press to Luxury.”
- Quoted in Oberdorfer, “Plushier Place for the White House Press.”
- It was estimated in 1966 that the makeup of the White House press corps was approximately 95 percent male, with the “appearance of women in its ranks . . . a comparatively recent innovation.” Muriel Dobbin, “Covering the White House and the President,” in The Press in Washington: Sixteen Top Newsmen Tell How the News Is Collected, ed. Ray Eldon Hiebert (New York: Dodd, Mead, 1966), 130; see, generally, 126–43.
- Quoted in Oberdorfer, “Nixon Shows LBJ.”
- Isabelle Shelton, “The Face in the Booth,” Washington Star, April 5, 1970, E3, clipping in White House—Additions & Alterations, 1971 folder, King Library.
- Marbut, News from the Capital, 179–80.
- Semple, “White House Press”; see also Oberdorfer, “Plushier Place for the White House Press.”
- Loory, “Tass Miffed.”
- Grossman and Kumar, Portraying the President, 46.
- Loory, “Tass Miffed.”
- Shelton, “Nixon Treats the Press to Luxury.”
- Ibid.
- A floor plan marked 1943 that depicts the ground level of the Executive Residence, the West Terrace, and the West Wing shows shrubs on the future location of the extension, with three windows opening northward that form the extreme east end of the wing. Elevations of the White House drawn by Lorenzo Winslow in 1946 record that the windowless extension had been completed by that time. White House, Ground Floor Plan, 1943, Office of the Curator, The White House; Winslow’s 1946 drawings are reproduced in William Seale, The White House: The History of an American Idea, 2nd ed. (Washington, D.C.: White House Historical Association, 2001), 231.
- Nelson, Who Speaks for the President?, 174–75.
- John F. Harris, “White House Works on Improving Image,” Washington Post, August 14, 1997, A19; Oberdorfer, “Plushier Place for the White House Press.”
Originally published by The White House Historical Association, republished with permission for educational, non-commercial purposes.


















