Christian buildings, Christian evidence in buildings, and destruction of buildings by Christians in ancient Ostia.
Buildings
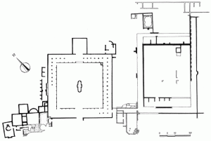
Oratorio Cristiano delle Terme del Mitra
Regio I – Insula XVII – (I,XVII,2)
The statue of Mithras in the underground mithraeum in the Baths of Mithras was destroyed by Christians, and parts were thrown in a drain. The Christians built an oratory or little church on top of the mithraeum, in the second half of the fourth or in the fifth century (the position is not a coincidence, of course). An apse with two marble columns and simple capitals was erected in room G (opus vittatum). In the same room four small marble columns were found. They are square and 1.30 high. On two of them the Christian monogram has been preserved. In the sides are vertical grooves, in which a wooden or metal fence was inserted. It is not clear to what kind of structure they belonged.
Nearby, on Via della Foce, fragments were found of the border of two curved tables or basins, parallels of which have been found in the eastern half of the Empire. Their function is not known. One had depictions of 16 to 18 philosophers or apostles (five have been preserved). The other was decorated with fishes.
Left: The Christian structure seen from the south. / Photograph: L.B. van der Meer.
Right: The Christian structure: detail of column with Christian monogram. / Photograph: Jan Theo Bakker.
Left: The Christian structure: border of table with philosophers or apostles. / From R. Calza 1966, p. 244.
Right: The Christian structure: border of table with fishes. / From R. Calza 1966, p. 248.
Oratorio Cristiano
Regio II – Insula VII – (II,VII,1)
To the south-east of the theatre are the scanty remains of a little Christian chapel, excavated in 1910 by Vaglieri. The area in which it was built, marked E on the plan, had a long and complex history. Nymphaeum II,VII,7 (B) was a decorative feature from the first three centuries AD. Other constructions in the area (C, D) were razed to the ground. In the late fourth or early fifth century a roughly triangular area was created, flanked to the south by columns, to the west by the theatre, to the north by two columns (on of which is on top of a street), and to the east by block II,VI. The level of this area was raised considerably and covered with many small pieces of marble.
Plan of the chapel and its surroundings. Vaglieri 1914, Tav. IV.
The chapel (A) was also at a very high level. Part of an apse and a bit of wall to the east have been preserved, made of pieces of tufa, travertine and marble. It must have been approximately nine metres long. Some masonry (opus vittatum) has been dated to the sixth to eighth century AD. The chapel was built on top of nymphaeum II,VII,7 and on streets. Human bones, sarcophagi and fragments of sarcophagi were found around the chapel and below the floor. The sarcophagi are all from an earlier period. All these remains were found rather confused, but according to the excavator at least some of it belongs to proper burials on this spot, in reused sarcophagi.
One sarcophagus is presumably Christian. It has a central relief of Orpheus as Pastor Bonus (Good Shepherd), reliefs of a man and a woman on the corners, and on the lid the inscription:
HIC
QVIRIACVS
DORMIT IN PACE
“Here Quiriacus is sleeping in peace”. The sarcophagus, still in situ, was made in the third or early fourth century. The inscription on the lid, now in the store-rooms, might be from the fifth century. Who was this Quiriacus, whose sarcophagus was within the city walls? During the reign of Claudius II Gothicus, in 269 AD, a bishop of Ostia, Cyriacus, was executed in Ostia, together with seventeen converted soldiers. The soldiers were beheaded ad arcum ante theatrum (“near the arch in front of the Theatre”), clearly the Arch of Caracalla. Cyriacus was executed on the same spot, or in prison. The sarcophagus with the relief of Orpheus must have been transferred to the spot of the executions in late antiquity, to hold the bones of the martyr, who had also been buried outside the city. And at that time the lid with the inscription referring to Cyriacus (Quiriacus) was added.
The triangular area mentioned above may have been a forerunner of the chapel, an earlier monumentalization in honour of the martyrs. A nymphaeum to the east (II,VI,2) may in reality have been a related baptistery.
The chapel was visited for many centuries. As late as 1162 AD the faithful went to the ecclesia Sancti Ciriaci extra villam. They came from Gregoriopolis, modern Ostia Antica, and followed the old Via Ostiensis and Decumanus Maximus. But by now the tombs and buildings flanking the road were half-buried ruins. From some point in time the chapel was forgotten and neglected. Perhaps the bones of Cyriacus were transferred to Rome.
For the Christian tradition built up around this area see F.A. Bauer, “Stadtbild und Heiligenlegende. Die Christianisierung Ostias in der spaetantiken Gedankenwelt”, Die spaetantike Stadt und ihre Christianisierung (G. Brands – H.G. Severin edd.), 2003, 43-62.
Left: The remains of the chapel seen from the Decumanus, from the south-east. Two modern inscriptions are in and to the right of the apse. / Photograph: Jan Theo Bakker.
Right: The outer west wall of the chapel, seen from the west. The column belongs to the nymphaeum below the chapel. / Photograph: Jan Theo Bakker.
Left: The sarcophagus of Cyriacus. / Photograph: Jan Theo Bakker.
Right: The sarcophagus of Cyriacus, detail of the good shepherd. / Photograph: Laura Maish-Bill Storage.
The two northern columns of the late-antique triangular area, preserved at the original height. Seen from the south-west.ย / Photograph: Jan Theo Bakker.
Basilica Cristiana
Regio III – Insula I – (III,I,4)
The Christian Basilica was discovered and excavated in 1939, by Guido Calza. He found a late-antique structure (opus vittatum, opus latericium, rubble masonry), built in and on top of pre-existing, Trajanic structures (opus latericium and opus mixtum), from south to north:
- Caseggiato III,I,5, a row of shops.
- A north-west – south-east running side-street, leading to the Decumanus Maximus.
- A small caseggiato with a courtyard, in front of which are two shops, facing the side-street.
The shops had been converted into a large hall in the third century. - Rooms belonging to the Baths of the Christian Basilica (III,I,3).
Plan of the building. After SO I.
Description
From the Decumanus vestibule A is reached (w. of entrance 3.48). The vestibule leads to a central “nave” (B). To the north-east of the “nave” are rooms F, G and H. These rooms originally formed part of the baths to the north-east (they had raised floors, suspensurae). In the entrance of each room are two columns and a marble threshold. On one of the columns in room F is the inscription:
VOLVSIANI V(ir) C(larissimus)
The column comes from the marble depot in the adjacent building, the Tempio dei Fabri Navales, where the same text was found on several columns. This Volusianus lived in the fourth or early fifth century AD.
The south-west wall of the “nave” is a row of five columns. In the north-west wall are a marble threshold and step, leading to room C, that is at a lower level. In this room an apse was built. In the apse are two semicircular wall-niches for statues (starting at 1.05, average h. 2.14, d. 0.72, w. 1.35). Their position is curious. They are not positioned on the axis of the room, the “nave” and the vestibule. Instead, they are on a diagonal axis, from the south corner of the room to the point between the two niches. The floor of rooms B and C was not found by the excavators. They did find many marble fragments however. Clearly the building had been plundered.
A few steps lead from room C to a small room to the north-east, flanked by two more rooms. A door in the southern room leads to the Trajanic caseggiato with courtyard (see above), of which five rooms around courtyard M were preserved.
To the south-west of A and B is another “nave” (E), that was also reached from the Decumanus (w. of entrance 2.66). A door in the south-west wall leads to rooms of caseggiato III,I,5 (room N). To the north-west is room D, with an apsidal back wall. In the apse (w. 3.07) are three wall-niches (w. 1.35, 1.46 and 1.96, d. 0.48). The central one is rectangular, the flanking ones are semicircular. In each niche a basin and a hole for a water-pipe were found. A large basin (height c. 0.80) must have been standing in front of the niches, set against the entire apse. In the outside of the apse is a small rectangular wall-niche. In the south wall of the room is a small apse, with a basin. The apses and niches had marble revetment. Between the two apsidal rooms (D and C) are four columns and a doorway.
In the south-eastern entrance of room D are two columns, supporting an architrave with an inscription. The architrave was found near the building. It fits perfectly on its present spot. It is made of two marble blocks and has a total length of 3.85. One of the blocks had been used as a threshold. Before that it carried an inscription. Traces of a single line, containing names, have been read:
[—]S ALEXANDER [—] AMMIVS [—] IGENIVS [—] V C [—] STINIANVS
On the side facing room E is an inscription, that Calza read and understood as follows:
IN XP GEON FISON TIGRIS EVFRATA (palm branch)
{TI}CRI[ST]IANORVM SVMITE FONTES (leaf)
(so Calza suggests that the first two letters of the second line are a mistake and should be neglected).
In the building the following objects were found:
- A mensa ponderaria (a slab with cavities to check compliancy to standard weights).
- A marble statue of Fortuna, found in room C.
Date of the Building
Heres has established that the last phases of the building belong to the fifth century. Most of the masonry belonging to the “basilica” belongs to the first half and perhaps the first quarter of that century. The apse in room C was added a few years later. The capitals in the building were made c. 420 AD.
(Heres 1982, fig. 82).
Gobbi came to different conclusions after research in the late 1990’s. According to her the apses in rooms C and D are contemporaneous. She believes, that after the addition of the apses the building was a domus. She maintains that rooms A, B, F, G, and H were added later, when columns were also installed. She prefers a date in the fourth century. Unfortunately she did not start an explicit discussion with Heres.
(Gobbi 1998, Tav. II and III).
The Inscription
We have seen that Calza suggested this for the inscription on the architrave:
IN XP GEON FISON TIGRIS EVFRATA (palm branch)
{TI}CRI[ST]IANORVM SVMITE FONTES (leaf)
In the first line the four rivers of paradise are mentioned (Genesis 2, 10-14). According to Ambrosius Christ was the source (fons) of the four rivers, and thus the source of eternal life (De Paradiso 3, 13-14; Erat fons qui inrigaret paradisum. Qui fons nisi dominus Jesus Christus, fons vitae aeternae sicut Pater? … Et dividitur fons in quattuor initia: nomen est uni Phison … et nomen secundo Geon … et flumen tertium Tigris … et flumen quartum Eufrates …). The four rivers were likened by christian authors to the four gospels, and were according to Calza also related to baptism (Cyprianus, Epistulae 73, 10; Has arbores rigat quattuor fluminibus id est evangeliis quattuor quibus baptismi gratia salutari et caelesti inundatione largitur; see also Augustinus, De Civitate Dei 13, 21).
According to Calza the (illiterate?) man who hacked out the inscription made a mistake at the beginning of line two: he started again with the word TIGRIS. The names of the four rivers are in the nominative, so sunt may be added, leading to the translation: “In Christ are Geon Fison Tigris Euphrates. Drink from the sources of the Christians”.
Alternative translations are:
- “Paradise rivers, take your (now) Christian sources in Christ!” (Von Gerkan).
- “In Christ! Geon, Fison, Tigris, Euphrates. Take them as the sources of the Christian!” (Klauser).
- “Come to the sources of the Christians, that are Geon, Fison, Tigris, and Euphrates” (Fรฉvrier).
A horizontal line to the right of the vertical line of the first T in the second line has suggested to Egger that it is an F, and he suggests FL(uminum) C(h)RI(st)IANORVM (“Geon, Fison, Tigris and Euphrates are in Christ. Use the water of the rivers of Christ”). In reality this horizontal line is an optical illusion, a shadow. The interpretation PEREGRINIANORVM by Mercati also has to be rejected.
For the correct reading of the inscription we must thank Burzachechi. His solution is now almost universally accepted. He argues that the letters TI in the second line cannot be understood as an error. It would have been easy to remove the two shallow letters. Also the person who had ordered the inscription would never have accepted this embarrassing mistake. There is furthermore not enough space for the letters ST. The first word of the second line is TIGRI[N]IANORVM (“Use the sources of the Tigriniani”). Burzachechi suggests that the Tigriniani were either a Christian family, or heretics, the followers of a certain Tigrinius or Tigrinianus. There may also be an allusion to the name of one of the four rivers in the first line, the Tigris.
Marrou points out, that heretics are documented very well in ancient literature, but Tigriniani are not among them. He points to a priest named Tigrinus, who was active during the papacy of Leo I (440-461 AD). He oversaw the building of a church on the Via Latina. His funeral inscription states, that he repaired sacred buildings (Diversis reparo tecta sacrata locis, culminaque hic lapsis trabibus totumque novendo, promerui superas laetior ire domos). The repairs may have been necessary after an earthquake in 442-443 AD. Parallels for the form Tigriniani are the Galbiani, Augustiani and Christiani, followers / supporters of Galba, Nero, Christ.
If this Tigrinus was indeed active in Ostia, then the inscription may have been added later to the architrave, perhaps when the apse in room C was built (an apse that has an axis running in the direction of the architrave).
The Function of the Building
According to Calza the building had in the final phase become a Christian church. He dates it to the period of Constantine and suggests that this is the church of Peter, Paul and John the Baptist that, according to the Liber Pontificalis, was donated to Ostia by Constantine. Calza then suggests, that the apsidal room behind the inscription was a baptisterium.
Calza’s dating and interpretation of the building have been criticized by many authors. The building lacks many features of a basilica, such as the right nave and an altar, and the statue-niches in room C do not belong in a church. The basins are not suited for baptism, which required total submersion. Baptism was related to the river Jordan, not the rivers of paradise. Room D was a nymphaeum. In the late 1990’s the basilica of Constantine was located by Michael Heinzelmann, outside the Porta Laurentina.
The building was after Calza interpreted as:
- A school for catechists (Von Gerkan).
- A monument for a martyr (Fรฉvrier).
- A library used by Christians (Klauser).
- A xenodochium, that is a guest house for pilgrims (Heres). Cf. the enlargement, in the fourth century, of the Ostian house (habitaculum) of Hilarinus, ad peregrinorum susceptionem.
- Room D was a nymphaeum, made public by a Christian family, or used by heretics for an unorthodox baptismal ritual (Burzachechi).
- A domus. The Christian reference to the nymphaeum is comparable to the pagan association of some nymphaea with Oceanus. It does not suggest Christian use of the building (Brenk).
Conclusion
The presence of relatively small rooms to the north-east and south-west, in combination with accentuated rooms (nymphaeum D, possible triclinium C with a semicircular dining-couch (stibadium)) suggest that the building was in its last phase a domus. It is true that there are no parallels for the plan amongst the larger known late-antique domus in Ostia, but it is dangerous to judge only on the basis of what we know.
But was the building a domus when the inscription had been chiselled in the architrave? That idea is problematic. The sources (fontes) in line two are compared to the rivers of paradise in line one. How can these rivers, emanating from Christ in the form of the gospels and providing eternal life, be likened to the niches of a nymphaeum in a mere house?
The reference to the nymphaeum must have had a deeper, Christian meaning, and it does not seem to have been baptism. This meaning is found, if the building was a guest house for pilgrims, who came to Ostia and of course Rome, to visit holy sites. In the guest house they would be provided with water, food and a place to sleep in the small rooms. The use of these “sources” would enable the pilgrim to tap the sources he came to visit, the holy monuments.
Nevertheless the link between the two lines remains unsatisfactory, forced. This mayย well be the result of an “intended pun”: the wish to link the name of one of the rivers of paradise, the Tigris, to the name Tigrinus (“he who dwells near the Tigris”).
Left: A reconstruction drawing of the building, seen from the south. / Calza 1940, fig. 16.
Right: A reconstruction drawing of the building, seen from the south. It is not certain that all rooms had a roof. / Calza 1940, fig. 17.
Left: Room D, seen from the back (north-west), after the excavation. To the right is the mensa ponderaria. / Pensabene 1998, fig. 45.
Right: Room E, seen from the Decumanus (south-east), after the excavation. / Pensabene 1998, fig. 46.
Left: Vestibule A, “nave” B and apse C, seen from the Decumanus (south-east). Note that the mensa ponderaria has been placed in the vestibule. / Photograph: Jan Theo Bakker.
Right: To the left room E and the architrave with the inscription, to the right “nave” B and apse C, seen from vestibule A (south-east). / Photograph: Jan Theo Bakker.
Left: “Nave” B and apse C, seen from vestibule A (south-east). / Photograph: Jan Theo Bakker.
Right: In the foreground the piers supporting the architrave with the inscription, to the left room D, to the right room C. Seen from room E. Note that the niches in room C are facing the viewer. / Photograph: Jan Theo Bakker.
Left: The architrave with the inscription, seen from room E. / Photograph: Jan Theo Bakker.
Right: The left part of the inscription on the architrave. / Burzachechi 1959, fig. 4.
Basilica of Constantine
Regio V
From a few literary sources we know that the Emperor Constantine donated a church to Ostia. This is described at length in the Liber Pontificalis (Silvester, 314-335 AD)), where donations by a certain Gallicanus are also recorded. The church was dedicated to Peter, Paul and John the Baptist. The dedication to the latter and the donation of a baptismal installation indicate, that it was the church of the Bishop of Ostia, who from 336 AD consecrated the Pope. The same church is mentioned in the Acts of Saint Gallicanus (Acta Sanctorum, June, VII), where Gallicanus is the sole builder. Flavius Gallicanus was consul in 330 AD, and then established himself in Ostia. In the Acts the church is said to be near a gate called Laurentia, that is, near a city gate leading to Laurentum, to the south of Ostia.
A geophysical survey (combined use of aerial photographs, magnetometry, and electrical resistance tests) of the unexcavated areas of Ostia led to the discovery of this church. The survey, under the direction of the German Archaeological Institute in Rome (Michael Heinzelmann and Franz Alto Bauer), was begun in 1996. Several small trenches were investigated in 1998 and 1999. The building is situated to the north-east of a secondary gate at the south end of Via del Sabazeo.
Region V with new discoveries, resulting from the geophysical research by the German Archaeological Institute in Rome.The Basilica of Constantine is indicated in blue. It was erected on top of a building from the Hadrianic period, indicated in red. Numbers indicate trenches. The secondary gate at the south end of Via del Sabazeo is at nr. 11. / Plan: Michael Heinzelmann.
In front of the church is a courtyard, the atrium. Between Via del Sabazeo and the atrium was a small square, from which the atrium was reached. The actual church has three aisles, the central one with an apse. The length of the central aisle plus the apse is 51.45, the width of the three aisles is 23.20. Very little remains of the walls. There were fourteen columns on each side of the central aisle. The building must have been more than 14 metres high.
Plan of the Basilica of Constantine (blue) and older buildings (grey). Numbers indicate trenches. / Plan: Michael Heinzelmann.
The Basilica was erected on top of a Hadrianic building. The atrium reuses its courtyard. The Hadrianic building in its turn was built on top of a building from the Augustan period.
The pottery found in the trenches confirms the Constantinian dating of the church. In the later fourth or early fifth century the floors were raised. A rectangular chapel for baptism with an apse at the east end, set against the south wall of the atrium, is also post-Constantinian. Some early Mediaeval sherds were found inside the church, and in this period the apse at the end of the central aisle may have been rebuilt. In the late fifth to seventh century domestic structures were built near the church, that was slowly being abandoned. In the eighth century the building was systematically plundered and in the late eighth and early ninth century the walls collapsed, shortly before Gregoriopolis (modern Ostia Antica) was built.
The results of the geophysical survey (Michael Heinzelmann).
Reconstructed section of the Basilica (Michael Heinzelmann).
Basilica di Pianabella
A few hundred meters to the south-east of the Porta Laurentina is a Christian basilica, now known as the Basilica di Pianabella (Pianabella is the modern name of the land to the south of Ostia). It was discovered in 1976. The presence of one or more churches near the Porta Laurentina is recorded in ancient literature, but the reports are confusing.
The building is quite large: 43.30 x 16.20 m. It was erected at the end of the fourth century. The area was cleared by destroying tombs, and sometimes walls of mausolea were reused. The masonry is opus vittatum. All tufa blocks and the bricks were taken from other buildings. A road with basalt pavement running along the building could not be used properly at the time of the construction; some of the basalt blocks had been removed and there was debris on the road.
Plan of the basilica, with the road and tombs on the other side of the road. North is up. / Brenk 2001, fig. 11.
The basilica consisted of a single hall, without naves. Inside the church, in front of the apse, a special enclosure was built, with 100 formae (4 layers of 25 graves). Most likely a martyr was buried in the church, possibly in the single forma between the apse and the enclosure, at straight angles to the other graves.
Reconstruction drawing of the basilica. / Paroli 1993, fig. 3.
The building was modified at the end of the fifth century by a bishop of Ostia called Bellator, at the end of the sixth or in the early seventh century, and in the first half of the ninth century. Throughout this period people were buried in the church.
Left: The basilica seen from the west. / Photograph: Milton Torres.
Right: The funerary enclosure inside the basilica, seen from the east. / Photograph: Milton Torres.
Church of San Ercolano
Near the modern cemetery of present-day Ostia Antica is the small Church of Saint Herculanus. It seems to have been built in the fifth century (opus vittatum in the lower part of the building). We know of the martyrdom of a Herculanus in Portus, in the third century. The reports say that he was buried in Portus, but it is still possible that the church was dedicated to this martyr. The majority of the Christian inscriptions of Ostia was found near this church.
In front of the church Dante Vaglieri was buried. He was one of Ostia’s most significant excavators, active in the early twentieth century.
The church and the modern cemetery in 1926. / From De Nisi 1982, fig. on p. 39.
Church of Sant’Aurea
In the centre of the mediaeval borgo Ostia Antica is the church of Aurea (in Greek: Chryse, “golden girl”). This was a Christian girl, who was executed in the mid-third century during the reign of Claudius Gothicus (268-270 AD) or Trebonianus Gallus (251-253 AD). Apparently she belonged to the family of some king or a Roman Emperor. Because of her religious conviction she had been sent away from Rome to Ostia, where she lived on her own estate outside the city walls. She was in touch with the Ostian bishop, Cyriacus, and other Christian church officials. Later another Christian, Censorinus, was emprisoned in Ostia (perhaps criminals were often sent to Ostia and put to work in the harbour). Aurea and others comforted him, and one day his chains were miraculously loosened, a miracle leading to the conversion of 17 soldiers. The Christian company also brought the dead son of a shoemaker back to life. Aurea’s companions were executed by a high official from Rome, Ulpius Romulus. The soldiers were beheaded near the arch of Caracalla in front of the theatre. Aurea was tortured, but refused to sacrifice to the pagan gods. She was then thrown in the sea with a stone tied to her neck. She was buried on her own property.
In 1981 a fragment of a Christian inscription was found near the church:
CHRYSE HIC DORM[IT]
(“Chryse is sleeping here”). It is now in the castle of Ostia, in the church a plaster cast can be seen. It may be her original funerary inscription, but it may also have been added later to the tomb. Also near the church, in 1950, a small marble column (5th century?) was found, with the inscription:
S. AVR
It can today be seen near the altar. In 387 AD the mother of Augustine, Monica, died in Ostia. She was buried near the tomb of Aurea. Her funerary epitaph was written by Anicius Bassus, a later consul, and has survived in ancient manuscripts. In 1945 part of the orginal inscription was found near the church. It can today be seen inside the church:
HIC POSVIT CINERES GENETRIX CASTISSIMA PROLIS
AVGVSTINE TVI(s) ALTERA LUX MERITI(s)
QVI SERVANS PACIS CAELESTIA IVRA SACERDOS
COMMISSOS POPVLOS MORIBVS INSTITVIS
GLORIA VOS MAIOR GESTORVM LAVDE CORONAT
VIRTVTVM MATER FELICIOR SVBOLE
“Here the most virtuous mother of a young man set her ashes, a second light to your merits, Augustine. As a priest, serving the heavenly laws of peace, you taught [or, you teach] the people entrusted to you with your character. A glory greater than the praise of your accomplishments crowns you both – Mother of the Virtues, more fortunate because of her offspring” (translation: Douglas Boin). Note by Douglas Boin: “Until now, scholars have unanimously interpreted the word “mother” (line 6) as a reference to Monica and presumed that the “virtues” are those of her offspring (subole), Augustine. The phrase “Mother of the Virtues” (virtutum mater), I believe, is a veiled personification of Love (caritas), a virtue who has been made more fortunate, or “abundant”, because of Love’s own offspring, “the chaste parent” (genetrix castissima), Monica. The phrase itself as a description or circumlocution for Love appears for the first time in a letter of Pelagius II, bishop of Rome (579-590 AD). It is Pelagius’ successor, however, Gregory I (590-604 AD), who popularized this characterization of Love in his letters and scriptural commentaries”.
The first church of Aurea may have been built in the fifth century. The orientation was precisely the opposite of that of the present church. In the floor and around the church many graves were found. The church was renovated c. 700 AD by pope Sergius I, c. 800 AD by Leo III, and c. 850 AD by Leo IV. In 1430 the relics were removed from the urn and taken to Rome, together with those of Monica (Acta Sanctorum, May I, p. 490). Later still, in the 18th century, they were brought to Albano Laziale (near Castel Gandolfo), to the chapel of the order of the “Suore Oblate di Gesรน e Maria”. In 1479 cardinal d’Estouteville ordered the building of a new church. The work was finished under cardinal Giuliano della Rovere. The architect was Baccio Pontelli. A large painting of the martyrdom in the apse of the church was made in the 17th century by Andrea Sacchi. Scenes from the martyrdom are also depicted in SS. Domenico e Sisto in Rome (Filippo Vanni, 14th century).
Left: The Church of Sant’Aurea. / Photograph: Jan Theo Bakker.
Right: The funerary inscription of Chryse / Aurea. Photograph: Jan Theo Bakker.
Left: The funerary epitaph of Monica. / Photograph: Jan Theo Bakker.
Center: The apse of the church. / Photograph: Jan Theo Bakker.
Right: The painting by Andrea Sacchi. / Photograph: Jan Theo Bakker.
Villa della Palombara (di Plinio)
In an area known as “La Palombara”, to the south of the Canale dello Stagno, part of a villa has been excavated in 1713, 1934, and 1989-1992. In the 18th century it was suggested, that it was the Laurentine villa of Pliny the Younger, which Pliny described in one of his letters (Epist. II, 17), but there is nothing which leads to the identification.
Plan of the villa. / From Ramieri 1995, fig. 3.
In anqituity the villa was very close to the beach. To the north is a peristylium with porticus, accessible from the west (opus reticulatum, dated to the second quarter of the first century AD). The porticus surrounded a garden with a basin in the centre. It has a double row of masonry columns, that were covered with stucco imitating a fluted shaft. In late antiquity a low balustrade was built between the columns of the inner row. An arch of the inner row was restored in the 1930’s. Behind this arch is a large room that may have been a triclinium.
Left: The east part of the peristylium seen from the south. / Photograph: Silvano Sanges.
Right: The peristylium seen from the north-east. The presumed triclinium is in the foreground. / Photograph: Silvano Sanges.
To the west of the peristylium are bathing rooms. Here a black-and-white mosaic was found of Neptune drawn by hippocamps, sea monsters and fish. It has been dated to the reign of Antoninus Pius. The westernmost room contains a round structure, that may have been a basin for fish. A few rooms to the south of the peristylium (one with a polygonal apse) have been dated to the second and early third century AD. Their function is unknown.
Left: The mosaic with Neptune in the bathing rooms. / Photograph: Silvano Sanges.
Right: The mosaic with Neptune in the bathing rooms. / From Ramieri 1995, fig. 2.
Left: The round structure that may have been a basin for fish. / Photograph: Silvano Sanges.
Right: A stretch of the Via Severiana. / Photograph: Silvano Sanges.
The living quarters seem to have been in the south-east part of the excavated area (opus reticulatum). They were apparently surrounded by a long, subterranean corridor (cryptoporticus), that has been preserverd best at the south-east side. One side has a long row of rectangular niches, the opposite side has one, semicircular niche.
To the north and north-east of the villa a stretch of the Via Severiana and a small Christian church can be seen.
Left: The little Christian church. / Photograph: Silvano Sanges.
Right: The little Christian church. / Photograph: Silvano Sanges.
Objects and Decoration
Aula del Buon Pastore
Regio I – Insula II – (I,II,4)
Plan of the Aula. After SO I.
The Hall of the Good Shepherd is located to the north-west of the Basilica (I,II,3). It was created through the addition of a wall in opus vittatum with a huge wall-niche, built c. 350 AD. Slight modifications of the east wall have been dated to c. 400 AD.
On the floor are remains of a white mosaic and reused marble. On the walls are traces of plaster. The hall was named after a column with a relief of the Good Shepherd, found here during the First World War. It seems to have supported something. The Good Shepherd indicates that the hall was used by Christians, possibly the ferry-men, who used the Basilica as guild seat.
The north wall of the Aula, seen from the south-west. / Photograph: Jan Theo Bakker.
The relief of the Good Shepherd (h. 0.68 m.). / From Calza 1916, fig. 3.
Terme di Nettuno
Regio II – Insula IV – (II,IV,2)
To the east of the theatre are very large baths (c. 67 x 67 metres), today known as the Baths of Neptune. The building was excavated by Lanciani in 1888 and Vaglieri in 1909 and 1910. Unfortunately it has not been the subject of a monograph. It is famous because of its Antonine black-and-white floor mosaics. The complex replaced baths from the late first century AD, and was financed by Hadrian with two million sesterces, and by Antoninus Pius with additional money and marble, witness the following inscription:
IMP(erator) CAES(ar) DIVI HADRIANI FIL(ius) DIVI TRAIANI PARTHICI NEP(os) DIVI N[ervae]
PRONEPOS T(itus) AELIVS HADRIANVS ANTONINVS AVG(ustus) PIVS PONTIF(ex) MAX(imus) TRIB(unicia) POTES[tat(e) II co(n)s(ul)]
THERMAS IN QVARVM EXSTRUCTIONEM DIVOS PATER SVVS HS XX (viginties centena milia) POLLIC[itus erat]
ADIECTA PECVNIA QVANTO AMPLIVVS DESIDERABATVR ITEM MARMORIBVS AD OMNEM C[ultum fecit]
We learn that the baths were inaugurated in 139 AD.
The building was damaged by fire during the reign of Marcus Aurelius, and repaired by a P. Lucilius Gamala: … thermas quas divus Pius aedificaverat vi ignis consumptas refecit porticum reparavit. Further modifications took place in the last decade of the third and in the fourth century. In a late ancient historical text (Historia Augusta) the baths are referred to as lavacrum Ostiense.
Plan of the baths. After SO I.
The building was entered from the east, through vestibule 1. To the south is a large latrine (2), with a mosaic with a Nilotic scene. At one end is a crocodile chasing a pygmee. In the centre is a river boat, transporting amphorae. Two poles may have supported a canopy. In the centre of the boat are a few remains of a naked figure. Here an erotic scene of a woman and a pygmee may have been depicted. In room 4 is the mosaic that gave the building its modern name: Neptune is depicted in a chariot drawn by hippocampi. He is surrounded by marine creatures: dolphins, tritons, and Nereids on sea-monsters. In the room to the south (3) is a mosaic with Neptune’s wife, Amphitrite, on a hippocampus. She is accompanied by Hymenaeus (a winged Eros with a torch, referring to marriage) and tritons.
To the north is frigidarium 5, with two basins with niches for statues. In the entrance to the eastern basin are two granite columns. On the floor we see Nereids, tritons and Scylla, striking with an oar. In the transitional room 6 is a later white mosaic with small symbols (see the figure below). These are Christian symbols, for which parallels are known. Becatti suggests that the mosaic may be dated to the second half of the third century or the first half of the fourth (“in un periodo in cui ancora non v’era stato un pieno riconoscimento ufficale della nuova religione, ma il cristianesimo era giร profondamente infiltrato nella societร romana”).
The Christian symbols in room 6 (not in their original position). / From SO IV, fig. 17.
- Top row:
-
- Grapes (a symbol of heaven).
-
- An 8, the number M (the life cycle of the phoenix, referring to the resurrection).
-
- Grapes (a symbol of heaven).
-
- The Greek letter chi (initial of Christ).
-
- A vessel below the letter I (initial of Christ).
-
- Swastika with the Greek letter rho (symbol of the cross).
-
- A schematic branch of a palm tree.
-
- A heart-shaped leaf.
- Bottom row:
-
- The word IESVS, four times.
-
- The Greek letter chi (initial of Christ).
-
- A cross and the Greek letter chi (initial of Christ).
-
- The Greek letters iota and chi (initials of Jesus Christ), a heart-shaped leaf, two black ovals (the number M, the life cycle of the phoenix), the letter R (of resurrectio), a phoenix (referring to the resurrection).
-
- The letters RE and LE.
Rooms 7 and 8 are tepidaria, room 9 is a caldarium with two basins. Room 10 was also a caldarium, that was later abandoned. To the north-west and north-east of room 10 are furnaces. To the west is a large palaestra, surrounded on three sides by a portico with marble columns. In the ground are blocks of travertine, with holes in which apparatus related to sport were attached. In room 12 is a mosaic with naked athletes: two boxers with spiked gloves, two pancratiasts (boxers-wrestlers) and a wrestler have been preserved. The position of the mosaic, next to the palaestra, is significant. Behind the porticus, to the west of the palaestra, is an accentuated room (13). Against the back wall of this room is the base of a statue, probably of Sabina, Hadrian’s wife, with the symbols of Ceres. In the north-west corner of the building is latrine 14. Below the palaestra is an older, huge cistern (36 x 26 metres), that was abandoned when the Hadrianic baths were built. Between the palaestra and the heated rooms is service passage 15. In the north-east corner were upper cisterns (16).
Left: The palaestra seen from the south-east. / Photograph: Melissa Sellers.
Right: Room 13 with the statue of Sabina (?), seen from the south-east. / Photograph: Melissa Sellers.
Left: The Nilotic scene in latrine 2. / From SO IV, Tav. CXVIII.
Center: Room 4 with the mosaic of Neptune, seen from the south-west. / Photograph: Jan Theo Bakker.
Right: The result of cleaning the mosaic in room 4. / Photograph: Bjorg Omholt.
The mosaic of Neptune in room 4. / From SO IV, Tav. CXXIV.
Left: Detail of the mosaic of Neptune. Photograph: Jos Janssen.
Right: The mosaic of Amphitrite in room 3. / From SO IV, Tav. CXXXII.
Left:ย Frigidarium 5 seen from the south-west. / Photograph: Jan Theo Bakker.
Right: Frigidarium 5 seen from the west. Photograph: Jan Theo Bakker.
Left: The mosaic of Scylla in frigidarium 5. / From SO IV, Tav. CXXXV.
Center: A triton in frigidarium 5. / From SO IV, Tav. CXXXVI.
Right: Mosaic with athletes in room 12: general view. / From SO IV, Tav. CXI.
Left: Mosaic with athletes in room 12: boxers. / Photograph: Eric Taylor.
Center: Mosaic with athletes in room 12: detail of left boxer. / Photograph: Eric Taylor.
Right: Mosaic with athletes in room 12: detail of right boxer. / Photograph: Eric Taylor.
Left: Mosaic with athletes in room 12: detail of wrestler. / Photograph: Eric Taylor.
Right: Mosaic with athletes in room 12: detail of pancratiasts. Photograph: Eric Taylor.
Left: The cistern below the palaestra. / Photograph: Jan Theo Bakker.
Right: A basin to the east of room 16, on the street, seen from the south-east. The sloping ramp supported a pipe connected with an upper basin. / Photograph: Jan Theo Bakker.
Aula del Gruppo di Marte e Venere
Regio II – Insula IX – (II,IX,3)
Plan of the Aula. After SO I.
The Hall of the Group of Mars and Venus was installed in the middle of the fourth century in the Hadrianic shops with backrooms II,IX,2 (opus latericium and vittatum). In the central north part of the shops a large apse was built, with a semicircular niche and two rectangular ones. This was a nymphaeum. Several traces of the water supply were found, such as holes and water-pipes. Opposite is a small apse with a niche placed off-centre (later blocked). To the east is a room (6.25 x 6.25) at a somewhat higher level (0.70), accessed through a colonnaded entrance with four steps. In the north part of the west wall of this room is a floor-niche. Former shops along the Decumanus also belonged to the building. The one to the south of the raised room has a small wall-niche to the east of the door leading to the raised room (this niche was already present in the shop). A low marble bench ran along part of the walls of this room. The walls of the building were decorated with marble and plaster. Several rooms have floors of opus sectile.
Traces of fire were found by the excavators, and the building does not seem to have been cleared after the fire. As a result many objects were found. Two important finds are:
– A large statuary group of Mars and Venus (h. of Mars 2.16; now in the Museo Nazionale, Rome). It was found on the floor, in many pieces. It does not belong to the building, because the intact statue was too large for the doors of the building. Originally it must have been placed in a niche: the group loses quality when it is viewed from the side or behind. It has been suggested that the heads are portraits of Marcus Aurelius and Faustina or Commodus and Crispina. It is also possible that the group comes from a tomb and represents a private couple.
– A fragment of a relief depicting a nude person with outstretched hands, standing in an aedicula. This is a Christian relief, probably of Daniel, without the lions.
The building has been identified as a Christian basilica and as a guild-seat. Neither hypothesis is convincing.
Plan of the Aula. / From Moretti 1920, fig. 2.
Left: The former shop in the south-east part, from the south. Note the fragment of a threshold with pivot hole, replacing the shop-threshold.ย / Photograph: Jan Theo Bakker.
Right: The raised room, from the south-east. Photograph: Jan Theo Bakker.
Left: The Christian relief. / From Moretti 1920, fig. 7.
Center: The group of Mars and Venus. / From Zanker, Forum Augustum, pl. 52.
Right: A funeral cippus found in the building (NSc 1919, 48-49). Originally it had a lid in the shape of a tympanum.
On the front is the inscription:
D(is) M(anibus)
A. LIVIO AGATHANGELO
SEVIR AVG(ustalis) QVINQ(uennalis)
HEREDES
Above the inscription was probably a head of Medusa. On the sides griffins are depicted.
Photograph: Jan Theo Bakker.
Edificio con Opus Sectile
Regio III – Insula VII – (III,VII,8)
Plan of the building. After SO I.
The Building with Opus Sectile was built 100 metres outside Porta Marina, behind the ancient beach. A modern road is more or less on top of the ancient coastline. The building was partially excavated in the years 1938-1942, but much of the building, and especially its famous marble wall decoration (opus sectile), was unearthed in the years 1959-1961 (Calza and Gismondi stopped their excavation after discovering the opus sectile). The building was published in detail by Giovanni Becatti in 1969.
From 83 coins can be deduced, that the construction started in the years 385-388 AD or a little later (opus vittatum), but some Hadrianic masonry (opus mixtum) can still be seen. The unfinished building was destroyed in 393 AD or somewhat later. Traces of fire were not found. The cause may have been an earthquake (note that in the years 393-394 AD the cella of the Temple of Hercules (I,XV,5) was restored). Becatti suggests that it was the work of people, during a well-known pagan revolt under Eugenius. Afterwards work did not continue, the building was never used.
The building was entered through a vestibule with a porch (A) at the end of the Decumanus Maximus. In the entrance is a threshold with pivot-holes for doors. The vestibule leads to the north-east corner of a colonnaded courtyard (B), that for the most part was destroyed by the sea and is covered by the modern road. Remains of a west-east running dike and of a mole perpendicular to the dike were found, perhaps built in the first century AD (Claudian?). The dike was given up during the late-antique construction work. To the east of the courtyard is a row of rooms, including an exedra (C), with two columns in the entrance and with a marble floor. Further rooms were found to the north of the courtyard, including a large staircase towards the west (not on the plan) and room D, where the opus sectile was found that gave the building its name. For some reason the level in this part of the building was lowered 1.5 m. In the entrance of room D are two columns, resting on the abandoned dike. The back part of the room is an alcove or exedra. There is a door in the east wall.
The opus sectile was found on the floor and restoration took many years. In 2006 it was taken from the museum in Ostia to the Museo dell’Alto Medioevo in Rome (EUR). Only the upper part of the marble decoration of the walls had been finished when the building was destroyed, from 2.50 to almost 8 metres from the floor. Work on the lower part had not yet begun. In the front part of the room are three registers on the side walls. On the east wall were depictions of animals and people. There are two lions (yellow) attacking a deer (blue-grey), a bust of a blessing Christ with nimbus and beard, and a bust of a young man. On the west wall was a tiger attacking a deer. Are the wild animals and the deer a reference to the amphitheatre? Zanker has suggested that the head with nimbus is that of a philosopher, but that view has won little support. There are furthermore depictions of architecture and of a window.
The south side of the side walls of the back part of the room were decorated with pilasters in opus sectile, with depictions of vine tendrils, birds, snails butterflies and worms. On the walls of the back part the marble imitates opus mixtum and windows, and even shadows. The imitation of the brick-and-tufa opus mixtum is surprising: it is material that is of course inferior to marble, and this particular combination had at the end of the fourth century not been used for centuries in Ostia (but some Hadrianic opus mixtum was still visible in this building). On the lower part of the wall is a checkerboard pattern, perhaps tapestry.
The ceiling seems to have been decorated with mosaics with a blue background. There are no parallels for mosaic decoration of ceilings, which was a late-fourth century invention as we can read in a letter written by Symmachus (Epist. VIII, 42). Above the entrance to the exedra was an architrave with depictions of furniture and other objects. No pavement was found, but a number of marble slabs intended for its decoration were already in the building.
Was the room with the opus sectile a dining-room, or did it have a religious function? According to Becatti the building was the seat of a Christian guild, but the presence of such a wealthy guild in Ostia at such a late date is surprising. It has also been suggested that it was a seaside villa. It may also have been the Ostian office-residence of an official, such as the Praefectus Annonae, and perhaps it was the work of Ragonius Vincentius Celsus, who was very active in Ostia while he was Praefectus Annonae, in the years 385-388 AD.
Reconstruction drawing. / From SO VI.
The remains of the dike, seen from the south-east. / Photograph: Jan Theo Bakker.
Left: The entrance of the building in the north-east corner, seen from the south-west. / Photograph: Jan Theo Bakker.
Right: The apsidal hall C in the south-east part, seen from the north-west. / Photograph: Eric Taylor.
Left: Detail of the floor of room C. / Photograph: Eric Taylor.
Right:ย Detail of the floor of room C. / Photograph: Eric Taylor.
Left: The room that was decorated with the opus sectile (D), seen from the south-west. / Photograph: Jan Theo Bakker.
Right: The decoration of room D in the Museo dell’Alto Medioevo. / Photograph: Giovanni Rinaldi.
Left: The opus sectile on the east wall of the front part of room D, general view. / From Aurea Roma.
Right: The opus sectile on the east wall of the front part of room D, lower left part. / From Aurea Roma.
Left: Opus sectile, detail of the head of Christ. / From Aurea Roma.
Right: Opus sectile, detail of the head of a young man. / Photograph: Giovanni Rinaldi.
Opus sectile, detail of a hunting lion. / Photograph: Giovanni Rinaldi.
The opus sectile in the back part of room D. / From Aurea Roma.
Domus dei Pesci
Regio IV – Insula III – (IV,III,3)
Plan of the house. From Becatti 1949, fig. 17. / North-west is up.
The House of the Fishes has two main building phases, that have been dated to the middle and the last quarter of the third century AD.
A few treads lead to vestibule A. The walls of the vestibule were painted. On the floor is a white mosaic with a polychrome panel: a chalice with a fish, and two fishes next to the stem of the chalice. These may well have been Christian symbols (an interpretation that is not universally accepted, however). The panel was seen properly when people left the building, which suggests that it was a farewell greeting for Christians who had met in the house. In the passage to room B are marble treads flanked by brick semi-columns.
On the walls of room B is plaster, on the floor a white mosaic. A wide passage leads to the porticus of courtyard G. The room is flanked by rooms C and F. In F are remains of plaster. C was much more luxurious. It is reached along marble treads from the porticus, and there is marble on the floor and lower part of the walls. In the walls are pipes for heating the room. The oven was in room D. The adjacent room E is a cistern.
Detailed plan of house / From Heres 1982, fig. 87
The porticus is U-shaped. The floor is decorated with a black-and-white geometric mosaic. Between the piers in front of rooms O, Q and R low walls were built, with benches on the side of the porticus. At one end of the porticus is room H, with polychrome opus sectile of very high quality.
Courtyard G was reached through a wide passage in front of room B. On the floor of the courtyard is a black-and-white mosaic. In the centre is a square marble basin, with a tiny pyramid with small treads, along which water flowed from the top. Later a large semicircular basin was added. It has a marble floor, in the centre of which a disc and a dolphin were depicted (no longer in situ). The dolphin may have been another Christian symbol. This may have been a baptisterium. Another marble fountain was set against the back wall of the courtyard. In front is a basin, on top a semicircular painted niche for a statue. A marble threshold leads to room I, with a coarse mosaic. In the courtyard a small statue was found of Fortuna with cornucopiae.
On the opposite side of the courtyard is the large hall N. In the entrance are two marble columns and two brick semi-columns. Between the columns is a marble threshold, between the columns and the semi-columns are low walls. The lower part of the walls of the room was covered with marble. On the floor is a black-and-white mosaic of very high quality, with depictions of a trident and two fishes. Next to the hall is room M, with a raised floor with suspensurae and heating pipes along one wall. It was heated from the tiny room L. On the other side of N is room P, that is flanked by an external staircase and an independent shop.
In the entrances to rooms Q and R are marble thresholds. In room R is a brick staircase, which replaced a staircase with travertine treads, reached from room S.
The house shortly after the excavation. SO IV, Tav. CXCIX.
Left: The semicircular basin and the fountain with pyramid in courtyard G, seen from the north-west (in front of rooms B and C). In the background is hall N. / Photograph: Jan Theo Bakker.
Center: Detail of the fountain with pyramid in courtyard G. / Photograph: Jan Theo Bakker.
Right: Courtyard G and room H, seen from the west. / Photograph: Jan Theo Bakker.
Left: The mosaic with the fishes in vestibule A. / Photograph: Jan Theo Bakker.
Center: Detail of an opus sectile-floor. / Photograph: Eric Taylor.
Right: Detail of a mosaic-floor. / Photograph: Eric Taylor.
Domus del Protiro
Regio V – Insula II – (V,II,4-5)
Left: Plan of the house. After SO I. North is to the right.
Right: Detailed plan of house / From Heres 1982, fig. 96.
The House of the Porch was installed in an older building in the late Severan period and the middle of the third century AD. Some alterations took place in the period 375-425 AD.
The house received its name from a marble porch in front of the entrance, consisting of columns supporting a tympanum. On the tympanum was an inscription, that unfortunately has been preserved only partially. It probably contained the name of the owner:
[—] X
VD [c. 12 letters missing] NGENTI
[—] I
Behind the porch is vestibule 1, flanked by secondary entrance 23. Behind the facade are shops with back-rooms (21-22 and 2-5). In room 6 is a staircase.
In the centre of the house is courtyard 32, with entrances to the north, east and south. On the west side is a double nymphaeum, facing west and east. It was decorated with marble. The west part consists of a large apse with a window in the centre, flanked by semicircular niches. In front is a basin. The east half has rectangular niches flanking the window. The latter niches are decorated with marble: two columns, supporting an architrave and a tympanum. In front is another long basin.
Below the courtyard and porticus 30 is an interesting underground complex. It can be reached along a staircase in porticus 30. Opposite the foot of the staircase is a semicircular niche. To the left is a room with a rectangular niche at one end, and a podium covered by a marble slab at the other. The niches suggest that this was a cult room rather than a cellar. To the right is a corridor leading to a well surrounded by three niches (for statues of the nymphs?). Opposite this well is another staircase, that originally led to the courtyard, but was blocked later.
Behind the courtyard is the main hall 13. In the entrance to the hall are two columns. On the floor and walls are remains of marble. From the decoration can be deduced that this hall, porticus 28, and rooms 11 and 12 were the representative part of the house. Rooms 14 and 15, and corridor 29 were domestic quarters. The rooms on both sides of the courtyard were bedrooms (cubicula). The servants’ sleeping-quarters have to be looked for on the upper floor.
In room 28 statues of Diana and Apollo were found. In room 14 a statue was found of the protective deity of the house, a Genius with snake and cornucopiae. In a drainage channel a Christian glass vessel was found in fragments (see the drawing below for a more detailed description).
Reconstruction drawing of the house, seen from the north-west. Boersma 1985, fig. 111. In the lower left part is a 3D-view of the south part of the underground complex / (Bakker 1994, fig. 3).
Left: The porch that gave the house its name, seen from the north-west. / Photograph: Jan Theo Bakker.
Right: Detail of the inscription on the porch. / Photograph: Jan Theo Bakker.
Left: The courtyard seen from the south-east. / Photograph: Eric Taylor.
Center: Hall 13, seen from the west. / Photograph: Jan Theo Bakker.
Right: The floor of room 11, seen from the west. / Photograph: Jan Theo Bakker.
Left: Funeral inscription, reused as drainage lid in corridor 24. / Photograph: Eric Taylor.
Right: Funeral inscription, reused in the floor of room 11. / Photograph: Eric Taylor.
Drawing of a glass cup, found in a drainage channel. Sixteen fragments of the cup were found, together with numerous other glass sherds. The cup or bowl was made of green, clear glass (diameter 0.18, depth 0.056). The figure of Christ (Christus Victor) was incised, with a nimbus, long hair, and wearing a mantle. He is carrying a long cross, with his monogram. In his other hand is an open book. Next to his head is another monogram (chi – rho). To his right is a palmtree, a reference to paradise. To his left is a basket with bread, a reference to the holy communion. The bowl was probably made at the end of the fourth century, during the reign of Theodosius. / Floriani Squarciapino 1952, fig. 3.
Destruction by Christians
Shrine on Piazza dei Lari
Regio I
3D-drawing of the compitum, from the south-east. / From Bakker 1994, fig. 17.
Ostia’s best preserved compitum (a shrine at crossroads) is on Piazza dei Lari, a small square to the south of the House of Diana (I,III,3-4). The oldest evidence on this small square is a late-Augustan or Claudian marble altar with a relief and an inscription. It should be noted, as Floriani Squarciapino has remarked, that it is round: all other compitum-altars which have been found are square. What the Piazza dei Lari looked like when the altar was placed there is not known. All the surrounding buildings are Hadrianic or Antonine and the older strata have not yet been investigated. It may be of importance that the altar is found at the intersection of two roads, Via di Diana and Via dei Lari, which coincide with the beginning of the inner pomerium of the Castrum. On the altar is an inscription:
[—m]AG(ister/istri) D(e) S(ua) P(ecunia) F(aciendam) C(uravit/uraverunt)
LARIBVS
VICIN(alibus/is/iae) SACR(am)
ARAM MARMOREAM
According to the inscription the altar was dedicated to the Lares Vicin. by one or more magistri. The Lares are Lares Vicinales, Vicinis, or Viciniae. The central god in the relief on the altar is Hercules, standing next to an altar. A thyrsus close to Hercules refers to Liber Pater. On either side of Hercules Pan is seen, leading a Lar Vicin. towards him. The altar was at some point in time mutilated, presumably by Christians.
To the south of the altar is a rectangular basin. To the north is a small, rectangular edifice, probably from the Antonine period. To this phase belong four corner piers and two short stretches of wall in between the corner piers, in the long sides. Similar corner piers, but a little thinner, belonging to the first floor, are reported by Paribeni. It is not known whether the building had a roof. No staircase was found. The foot used was c. 0.303 long. The thickness of the walls is one and a half feet. The corner piers are two times three feet long on the outside, two times one and a half feet on the inside. The short stretches of wall in between the corner piers are four feet long. The entrances in the short sides are fifteen feet wide, the four lateral ones nine. The whole edifice is a rectangle of 28 x 21 feet (4:3).
There are at least two further alterations to the building (c. 250-275 AD?). Several entrances were narrowed or closed off, and the room was apparently divided in a northern and southern half. A small room was set against the outer south wall, between the building and the altar. Three L-shaped piers were set against the outer north and east wall, a further pier was erected near the northeast corner. Paribeni suggests that the piers supported a balcony.
The room is called “una specie di chiosco” by Paribeni, which is not very helpful. At first sight the wide entrances suggest that the edifice was a shop. This is unlikely however. The walls on the ground floor were almost entirely made up of entrances. There was therefore no storage space and the room must have been very draughty. This is why I think that a shop-threshold, placed in a door in the east wall, must belong to one of the later building phases, when several entrances were blocked. The curious lay-out of the original edifice and the close proximity to the altar justify the hypothesis that it was a sacellum, related to the altar, and probably replacing a shrine from the first century AD. The many wide entrances are probably to be understood as ritual gates. The structure seems to belong to the class of the pervia compita, mentioned by Persius and Calpurnius Siculus.
The compitum seen from the north-east. / Photograph: Jan Theo Bakker.
Drawing of the reliefs on the altar. / From Floriani-Squarciapino 1952, Tav. LI.
Left: Detail of the altar. / Photograph: Jan Theo Bakker.
Right: Detail of the altar. / Photograph: Jan Theo Bakker.
Tempio Collegiale and Mitreo di Fructosus
Regio I – Insula X – (I,X,4)
Plan of the temple and mithraeum. After SO I.
The Guild Temple
A guild temple was built in the south-west part of the block, at the intersection of Via del Pomerio and Via del Tempio Rotondo. The building (opus latericium) has been assigned to the reign of Alexander Severus (222 – 235 AD). In the courtyard are a few later walls (opus vittatum).
The south part of the outer west wall is oblique, probably to make the passage of wagons or pack animals easier. The corner of the building was reinforced with travertine blocks and the drum of a column. The main entrance is in the west part, between two shops. It is accentuated by brick piers with travertine bases. Secondary entrances are found in the south-east (a staircase) and north-east.
From the vestibule one reaches a courtyard with porticus. Behind the courtyard is the substructure of the podium of the temple, which was never finished however. The wide staircase leading to the podium is missing, and the cella was not built (possibly funds of the guild had been confiscated by Alexander Severus’ successor Maximinus). The podium is flanked by small rooms and staircases. Below the north-eastern staircase is a latrine. A large room to the north of this staircase also belongs to the complex.
In the substructure of the podium a mithraeum was installed (see below). An inscription from the mithraeum mentions a corpus s[—]. It is almost certain that this is the guild of the stuppatores: rooms to the north were used for the production of stuppa, i.e. tow, oakum (Officina Stuppatoria I,X,3). The members of the guild would meet and have banquets in the complex. The northern wing of the porticus may have served as dining room. The large room in the north part may have been a dining room or kitchen. Water could be obtained from a well in the northernmost shop. The corpus stuppatorum in Portus worshipped Minerva Augusta as conservatrix et antistites (“defender and overseer”) of the guild.
Plan of the temple and mithraeum. / North is to the left. From Becatti 1954, fig. 4.
The mithraeum of Fructosus
The mithraeum in the substructure of the podium was reached through a door in the north-east part of the porticus, then through a corridor in front of the podium, and finally by descending a few steps. Preparations had been made for a low cross vault to support the podium, but it was never finished. Instead a higher cross vault was built to cover the mithraeum, and the springing of the planned low vault was filled with opus vittatum and stucco. The floor of the room was lowered.
In the back wall a semicircular wall-niche was hacked out, 40 centimeters deep. On either side of the niche was a small marble column. On the bottom rested a marble slab with a pivot hole. The rough concrete of the back was left unfinished, intentionally, so that it recalled the cave in which Mithras was born. The niche was painted blue and will have contained a statue of Mithras.
In the west wall, next to the entrance, is a recess for a relief or an inscription. In the north wall is a slit window. Podiums were set against the long sides of the room. They accomodated c. 18 men. The walls of the room were all painted white. Traces of red and blue were seen by the excavators. Two marble supports may have belonged to a table in front of the niche. Furthermore two bases were found, one of marble, the other of travertine. Most likely they supported statues of Cautes and Cautopates, holding a raised and a lowered torch (part of the statue of Cautes has been preserved).
Fragments were found of a marble cornice, which rested on small columns or a similar support. The original location remains uncertain. It carries the inscription (one line):
[—]rius Fructosus patron(us) corp(oris) s[tuppatorum—te]mpl(um) et spel(aeum) M(i)t(hrae) a solo sua pec(unia) feci(t)
“?rius Fructosus, patron of the guild of the tow-makers, built the temple and cave of Mithras, alone and on his own expense”
A list of members of the corpus st[—], from the third century AD, mentions a Fructosus senior, and a Fructosus as patron. The shrine was destroyed thoroughly and set on fire by Christians.
Left: View through the vestibule towards the courtyard. / From the west. / Photograph: Eric Taylor.
Right: The south-east part of the courtyard, seen from the north-west. / Photograph: Eric Taylor.
The mithraeum seen from the west. Note the niche in the back wall, the supports for a marble table, and the bases of statues for Cautes and Cautopates. / Photograph: Gerard Huissen.
Left: The mithraeum seen from the north-west. Note the springing of the high cross vault, and the filling of the low cross vault to the right of it. / Photograph: Gerard Huissen.
Right: The rooms to the north of the podium, seen from the north. To the left is a staircase, in the centre a slit window. / Photograph: Gerard Huissen.
Mitreo delle Terme del Mitra
Regio I – Insula XVII – (I,XVII,2)
Plan of the mithraeum. / From SO II, fig. 7.
The mithraeum was installed in the service area of the Baths of Mithras. Some walls of opus vittatum were added. The shrine was reached via a brick staircase. The entrance is between two cross-walls. The inside measurements are 15.37 x 4.55, the maximum height of the vault is 2.10. A back wall was added with a door in the east side (w. 0,80, h. 1.65), leading to the service area. A small cross-wall made the door invisible. In the vault are two square skylights, one in the centre, one in the south part, above the head of Mithras about to kill the bull (see below). From the skylights can be deduced that the ceremonies in the shrine took place during the day. We may also assume that the baths were then not yet open, which takes us to the early morning, perhaps daybreak.
In the east side of the vault, near the entrance, is a square shallow recess (0.60 x 0.60), painted red, presumably for a relief or inscription. There are a few remains of paintings, of landscapes and standing figures. The podia are low (0.33), and divided in two sections by a pre-existing reinforcing arch of opus latericium. At the south end of the podia are two small brick piers, on top of which two small tufa pyramids were found, a reference to the rock from which Mithras was born (saxigenus). In the vertical side of the podia, halfway down the shrine, are niches. They probably contained two small tufa altars in the shape of a pyramid, found in the shrine.
The shrine has a brick floor. On the floor, between the south ends of the podia, is a square brick base (0.42 x 0.42, h. 0.50). In front is a small, plastered, triangular altar. On the three corners stood small triangular columns, originally supporting something.
Behind the podia a statue of Mithras about to kill the bull was found in situ, resting on a masonry base placed diagonally (h. 0.30). The head of the god was illuminated in a dramatic way through a skylight. The height of the statue is 1.70. It is made of Greek marble. The blade of the knife is missing. It was probably made of metal. The Phrygian cap was made separately and is also missing, as are the metal rays that were fastened in holes. The head of the bull and the head and an arm of Mithras were found in a channel in the mithraeum, together with small fragments of the statue, that are ancient restorations. The statue stands upon a base of grey marble (resting on the masonry base), the same kind of marble used for the restorations. Obviously a damaged statue had been acquired. The fragments must have been thrown in the channel by Christians, who erected a small edifice above the mithraeum. On the chest of the bull is the inscription:
KRITฮฉฮ
AฮHNAIOฮฃ
Eฮ OIEI
“Kriton the Athenian made (the statue)”. This may have been M. Umbilius Criton, who is documented in the Mitreo della Planta Pedis. The statue seems to belong to the second century AD. The mithraeum may have been installed in the first half of the third century.
The mithraeum seen from the north. / Photograph: Laura Maish-Bill Storage.
Left: Plaster cast of the statue of Mithras. / Photograph: Bill Storage.
Right: The statue of Mithras. Photograph: / Laura Maish-Bill Storage.
Sacello dell’Ara dei Gemelli
Regio II – Insula VII – (II,VII,3)
Plan of the shrine. After SO I.
In the south-west corner of the Piazzale delle Corporazioni a little shrine was inserted, the Shrine of the Altar of the Twins. It is particularly interesting and still enigmatic because of the find of a marble altar in 1880 or 1881 by Lanciani. The original is now in the Museo Nazionale in Rome. A plaster-cast is in situ.
The shrine is a little rectangular room (4.45 x 3.48 m.). The masonry has not been dated. We only know that it is later than Hadrian (117-138 AD). There is a similar room on the east side of the square. Set against the back wall is a brick base (1.70 x 1.35, h. 0.85). Along the walls were benches with marble revetment.
The room was ransacked at an unknown point in time by people who entered through a breach in the west wall. They missed the altar, which was covered by a large piece of the ceiling. The altar measures 0.84 x 0.84 m., and is 1.10 m. high. A container for offerings or a statue was fastened on top with lead (the altar is explicitly called “altar” in an inscription, but it may have been re-used as a statue-base). The four corners are decorated with ram’s heads and wreaths. The front has a depiction of Mars, Venus (with goose and Amor), and Hymenaeus (the god of marriage). On the back we see Romulus and Remus, suckled by the she-wolf. They are found by two shepherds, Faustulus and Faustinus. This story is situated near the Palatine (the Lupercal), and the personification of the hill can be seen in the upper left part. In the lower right part is the personification of the Tiber. Jupiter’s eagle is present as well. On the sides of the altar are amorini, hauling the weapons and chariot of Mars. The amorini are moving towards the front side of the altar.
The altar carries various inscriptions. On the front side, above Mars and Venus:
P(ublius) AELIVS TROPHIMI AVG(usti) L(iberti) PROC(uratoris) PROV(inciae)
CRETAE LIB(ertus) SYNEROS ET
TROPHIMVS ET AELIANVS FILI
The people responsible for the altar were P. Aelius Syneros (freedman of P. Aelius Trophimus, himself freedman of Hadrian and procurator of Crete) and his sons Trophimius and Aelianus (named after the former dominus of Syneros).
On the lower part of the front side:
DECVRIONVM DECRETO
The placing of the altar was approved by the city council, indicating that it was located on important, public ground.
On the upper part of the front side, on a small ledge:
[A]RAM SAC[6]ONAM AVG GENIO[3]SACOMAR[—]
Perhaps the annona (the Imperial grain supply of Rome) and the Genius of the guild of the weight-makers and weigh-masters (collegium sacomariorum) were mentioned. The missing six letters are perhaps to be restored as ad Annonam, and might be a reference to the temple (of Annona?) in the centre of the Piazzale delle Corporazioni.
On the upper part of one of the sides:
VOTVM SILVANO
This inscription tells us that the altar was dedicated to Silvanus.
On the lower part of the other side:
DEDICATA K(alendis) OCTOBR(is)
M(anio) ACILIO GLABRIONE C(aio) BELLICO TORQVATO CO(n)S(ulibus)
The altar was dedicated on October 1, 124 AD.
The reliefs leave little doubt that the altar was originally dedicated to Mars. If one of the inscriptions really contained the words ad annonam, then the altar may originally have been located near the temple in the centre of the Square of the Corporations, in a setting so that all sides could be seen (which was not the case in the little shrine). The representation of the founding of Rome, under the supervision of Jupiter and with reference to the concordia of Mars and Venus, suggests a link with the Imperial cult. We are reminded of a sculptural group of Mars and Venus that was found in the Aula del Gruppo di Marte e Venere (II,IX,3), representing either the couple Marcus Aurelius – Faustina, or Commodus – Crispina. The statue seems to have been dumped in the Aula; had it been standing on the base in the back of the shrine, behind the altar?
The dedication to Silvanus is usually seen as re-use of the altar by the sacomarii. In another Ostian inscription we hear of L. Calpurnius Chius, quinquennal(is) collegi Silvani Aug. maioris quod est Hilarionis iunctus sacomari. Perhaps we should translate: “L. Calpurnius Chius … president of the larger guild of the August Silvanus, which is named after Hilario, member of the guild of the weigh-masters”. Again we find a tie between the weigh-masters and Silvanus, this time Silvanus Aug., a reference to the Imperial cult [1]. We may note that L. Calpurnius Chius was also president of the guild of the grain measurers (mensores frumentarii). In Ostia’s sister-city Puteoli we hear of people who call themselves mensor et sacomarius, and in the same city the sacomarium seems to have been in the harbour district (emporium). Another Ostian inscription tells us that Cn. Sentius Felix was patron de sacomar.
The altar was found with the back side turned towards the front, witness an illustration by Lanciani, the name given to the shrine by the excavators, and the orientation of the plaster cast. The present author would like to relate this to the state of preservation of the altar. The back side is preserved quite well, the other sides are damaged severely, and this can hardly be the result of the collapse of the roof of the tiny shrine. The damage, particularly of heads, suggests that the altar, with its references to the Imperial cult, was attacked by Christians in the fourth century AD. The back side, depicting the foundation of Rome, may have been spared. The Ostian magistrates may have restored the altar with the more neutral side as front side. We may think here of Ragonius Vincentius Celsus, prefect of the grain-supply, who erected a statue of Roma in front of the theatre. Perhaps now, in the late fourth century, the altar became the base of a statue of Roma.
Plaster cast in situ, with amorini hauling the chariot of Mars on one of the sides. / Photograph: Melissa Sellers.
Left: Romulus and Remus suckled by the she-wolf, discovered by shepherds (back side). / Photograph: Silvano Sanges.
Right: Mars and Venus (front side). / Photograph: Jan Theo Bakker.
Left: Inscriptions on the front side, left. / Photograph: Jan Theo Bakker.
Center: Inscriptions on the front side, centre. / Photograph: Jan Theo Bakker.
Right: Inscriptions on the front side, right. / Photograph: Jan Theo Bakker.
Left: Top of the altar. / Photograph: Jan Theo Bakker.
Right: Top of the altar, detail. / Photograph: Jan Theo Bakker.
Tempio della Magna Mater
Regio IV – Insula I – (IV,I,1)
The Temple of the Magna Mater is situated at the west side of the Campus of the Magna Mater. In front of the temple is a large masonry altar (opus reticulatum, decorated with marble). Here two honorary statues were once standing, of P. Claudius Veratus Abascantianus and P. Claudius Horatius Abascantianus. The statues were erected by their father, P. Claudius Abascantianus, a high official in the guild of the dendrophori. One of the inscribed marble bases, with the consular date 194 AD, can still be seen near the temple. In the other inscription are the words … in campo Matris deum ….
The temple has a podium of opus latericium with a cornice, and with three large niches in each of the sides and the back. The red bricks are Hadrianic, but they cover an older podium (opus reticulatum). At the front is a wide staircase, decorated with marble. It is interrupted by a landing, 2 meters deep. On each side of the landing a rectangular hole was found. Small pine-trees or flowers may have been planted here. Of the temple itself not much has been preserved (opus latericium, max. h. c. 0.70). According to Visconti there was an ante-room, preceding a cella with niches in the side walls (7.30 x 6.50). The cult statue was in the back of the cella, on a base. It is noteworthy that the temple was smaller than the podium.
Plan of the temple. / From Vermaseren 1977, fig. 23.
Many dedications by the guild of the cannophori were found in the central niche in the back wall of the podium, walled in. Presumably they had been hidden in late antiquity, out of fear that they would be destroyed by Christians. Nearby, behind the temple, dedications by the dendrophori were found. Several deities are mentioned: Magna Mater, Attis, Virtus, Silvanus, Numen domus Aug., Genius decurionum Ostiensium. Some were made for the well-being of the Emperor. The seats of these two guilds must have been nearby, but have not yet been found or identified.
In the western part of the campus several bronze and marble statues and statuettes were found in an unspecified location, of Magna Mater, Minerva, Mars, the Dioscures, Aesculapius, Diana, and also of Emperors.
Left: The remains of the temple, seen from the east. / Photograph: Jan Theo Bakker.
Right: The podium of the temple seen from behind, from the west.To the left are the three niches in the back of the podium.
In the central one many votive offerings had been hidden in late antiquity. / Photograph: Jan Theo Bakker.
Left: A dedication from 194 AD by P. Claudius Abascantianus, near the temple (CIL XIV, 325, cf. 326). / Photograph: Jan Theo Bakker.
Right: A statue of the Magna Mater / Cybele (h. 0.98), possibly from Ostia. / From Rieger 2004, Abb. 123.
Left: Portrait of Antinous, found on the Campo della Magna Mater. / Rome, Museo Nazionale. Photograph: Jan Theo Bakker.
Right: Portrait of Vespasianus, found on the Campo della Magna Mater. Rome, Museo Nazionale. / Photograph: Jan Theo Bakker.
Santuario di Attis
Regio IV – Regio I – (IV,I,3)
The Shrine of Attis is situated to the east of the Campus of the Magna Mater. It is preceded by a fairly large area (c. 9.90 x 11.10) without a roof, surrounded by a wall (opus reticulatum from the Julio-Claudian period). The open area was entered from the south-west. The entrance is decorated by a porch with two marble pilasters, and has three steps on the outside and two on the inside. On the floor is opus spicatum. In the area are three basins. It has been suggested that these were fish-ponds, because there are a few references of fish being offered to Attis.
Plan of the east part of the temple-complex of the Magna Mater. / From Vermaseren 1977, fig. 24.
The actual shrine was added in the third quarter of the third century at the south-east side (opus latericium and vittatum). The entrance is flanked by two semi-columns with large, marble reliefs of Pan, each with a six-reeded shepherd’s pipe and a shepherd’s crook. The reliefs have been dated to the second half of the third century. It seems that they were damaged on purpose, presumably by Christians. The back wall contains an apse, in the side walls are two shallow rectangular niches. In the centre of the apse, at a height of c. 3.00, is a small rectangular window. In the lower part is a semicircular travertine ledge, presumably for votive offerings.
In the apse is a plaster cast (the original is in the Vatican Museums) of a statue of a reclining Attis, after the emasculation. In his left hand is a shepherd’s crook, in his right hand a pomegranate. His head is crowned with bronze rays of the sun and on his Phrygian cap is a crescent moon. This suggests astrological aspects: Attis was regarded as a solar deity and identified with the moon-god Men. He is leaning on a bust, probably the personification of the river Gallos, where he had died. His posture is reminiscent of river gods (the river Gallos), but the statue also brings to mind sarcophagi, with a depiction of the deceased on the lid. The statue is a dedication by C. Cartilius Euplus, witness the inscription on the plinth:
NVMINI ATTIS C(aius) CARTILIVS EVPLVS
EX MONITV DEAE
It was found in 1867 in the porticus along the south side, together with a bronze statue of Venus, and a statue of a cock dedicated by M. Modius Maximus. The objects seem to have been hidden there in late antiquity. Originally they may well have been standing in this shrine. The cock (gallus, referring to the priests, galli) is standing on a round object with grain-ears on top. It may be a depiction of a modius, a grain-measure, referring to the name of the giver, and perhaps his profession.
Many small statues and reliefs were found in or near the shrine by Calza, now to be seen in the Ostian museum. Many of these were given by C. Cartilius Euplus.
– Statuettes and reliefs of Attis: riding a lion, playing the shepherd’s pipe seated on a rock amidst his herd, dying under a pine-tree after his emasculation, Attis – Dionysus, Attis – Apollo, Attis – Hermaphrodite.
– A round altar with twelve gods: Jupiter, Juno, Minerva, Magna Mater / Cybele or Ceres, Venus, Diana, Vesta, Apollo, Vulcanus, Mercurius, Neptunus and Mars.
– Several statuettes of Venus.
– Fortuna or Ceres.
– A warrior with a helmet, carrying a small round shield.
– A relief of a lion attacking a deer, a panther and some bears, all animals of the forest, of which the goddess is the mistress.
– A bull.
– A pine-tree with a snake.
C. Cartilius Euplus lived in the second century AD. His dedications were eventuallly placed in the third-century apse. We do not know where they stood originally.
The statue of Attis-Dionysus is of great interest for the situation in late antiquity. It is a dedication by a Volusianus, vir clarissimus. This may be C. Ceionius Rufus Volusianus Lampadius, praefectus Urbi in 365-366 AD. This man and other members of his family also put up dedications in the Phrygianum in Rome, a large sanctuary of the Magna Mater in campo vaticano, next to the old St. Peter. This family is regarded as a typical example of upper class supporters of pagan religion in late antiquity.
Left: The shrine seen from the west. / Photograph: Jan Theo Bakker.
Right: Detail of the statue of the reclining Attis. / Photograph: Melissa Sellers.
Left: A cock on a modius, a dedication by M. Modius Maximus, archigallus coloniae Ostiensis. / From Rieger 1994, Abb. 119a-b.
Right: The basins in the open area, seen from the south. / Photograph: Jan Theo Bakker.
Originally published by “Ostia: Harbour City of Ancient Rome“, republished with permission for educational, non-commercial purposes.




ย 



ย 




ย 








































































































































