Introduction to the Fulleries (Fullonicae)
A number of tiny and very large fulleries has been found in Ostia, workshops where clothes were cleaned, which the (wealthier) Romans apparently did not do at home. Four were published by A.L. Pietrogrande in 1976, in one of the volumes of Scavi di Ostia. Another two were excavated later, by C. De Ruyt and A. Pellegrino.
- Fullonica del Cardo (I,XIII,3) (published by Pietrogrande)
- A fullery in the Terme del Mitra (I,XVII,2) (not published)
- Fullonica II,XI,1 (published by Pietrogrande)
- A fullery in the Caseggiato della Fullonica (II,XI,2) (published by Pietrogrande)
- A fullery below the Tempio dei Fabri Navales (III,II,1-2) (excavated by De Ruyt)
- Fullonica su Via degli Augustali (V,VII,3) (published by Pietrogrande)
- A fullery on the right bank of the Tiber (excavated by Pellegrino; not published)
Similar activities may have taken place in some other buildings:
- Caseggiato IV,V,3
- Caseggiato II,VIII,7-9
The large fulleries have several features in common. They contain a large hall with very large basins in the floor, communicating with one another. In these basins clothes were put to soak and cleaned. Along three sides of the hall are pressing-bowls, usually made of terracotta, often the lower half of a dolium. Here the material was further cleaned, by workers who “jumped” or “danced” on the clothes (the so-called saltus fullonicus; Seneca, Epistulae 15,4), while they leaned on small walls on either side. Detergents were used, such as the creta fullonica (fuller’s earth), that was stored in small bowls. It helped remove the grease and enhanced the colours. Urine, collected in public urinals, was used for bleaching, and so was sulphur, that was burned under wooden frames over which the cloth was suspended. After the pressing, the material was taken to the basins again, for the removal of the detergents.
Reconstruction drawing of a fullery in Ostia. From De Ruyt 2001, fig. 4.
The fourth side of the hall was used for other activities. Here the cleaning process ended with beating the cloth, which also made it more compact. In two buildings this fourth side is next to a smaller area, which seems to have been used for further finishing activities.
Fulleries were known for their stench, caused by the detergents. This must have affected also the health of the workers. “Prolonged immersion in water inevitably made fullers’ feet and legs particularly vulnerable to bacterial, viral and fungal infections; repeated exposure to urine and fuller’s earth (even for just one hour per day) would have led rapidly to irritant dermatitis with thickened, dry, and cracked skin. Fullers’ lungs, exposed on a daily basis to burning sulphur, presumably also suffered severe respiratory complications.” (Bradley 2002, 37-38).
Pietrogrande is not sure whether the large establishments were used for cleaning only, or whether the cloth was also processed further (starching, carding, shearing, dyeing etc.). There does not seem to be enough room for the whole process of making clothes. On the other hand, a small oven near one of the fulleries may well have been used for dyeing. De Ruyt is certain that clothes were fabricated, and she suggests that the volume was so large, that some of the clothes must have been sold in Rome. Bradley is convinced that only cleaning and re-dyeing took place. Wilson and Flohr (2003) maintain, that the large Ostian fulleries were large-scale wool-finishing establishments.
From literary sources we know that workers feasted at the occasion of certain feriae publicae (public feasts). The most important of these was the Quinquatrus in honour of Minerva. This feast took place on March 19th, also called artificum dies (day of the craftsmen), and on the four following days. Ovid calls the Minerva of the Quinquatrus mille dea operum (goddess of a thousand crafts) and lists as participants wool processors, shoe-makers, carpenters, doctors, teachers, engravers, painters, sculptors and poets (Fasti 3, 809-834). The actual workshops, at least of the fullers, were used for the feasts, as is shown by Pliny the Elder’s description of a painting: Simus … officinam fullonis Quinquatrus celebrantem (pinxit) (Simus … painted the workshop of a fuller celebrating the Quinquatrus) (Naturalis Historia 35, 143). Possibly processions were organized: on the facade of the Domus di Tullius (VI 7, 8-12) in Pompeii, in which an officina lignaria (cabinet-makers’ workshop) was installed, a painting was found showing the carrying of a ferculum (a frame) with Daedalus and Minerva on top. Daedalus and Minerva are here the protectors of the cabinet-makers’ craft, a craft also depicted on top of the ferculum. The presence of Minerva might point to the Quinquatrus. The various kinds of wool-processors worshipped Minerva as their protective deity, as can be deduced from inscriptions from Spoletium, Aquileia and Rome, from some graffiti from the Fullonica di Fabius Ululitremulus (III 1, 1) in Pompeii, and from the painting of Simus mentioned above.(Bakker 1994, 73-74).
Graffito from a fullery in Pompeii (CIL IV, 9131).
“Fullones ululamque cano non arma virumq(ue)“
“I sing of fullers and the owl, not arms and the man”
The owl is a reference to Minerva, the whole text to the opening of Virgil’s Aeneid.
The guild of the fullers in Ostia was called Corpus Fontanorum. It is mentioned in an inscription from 232 AD (CIL XIV, 4573 = AE 1909, 0215, AE 1913, p. 57 s.n. 233; Meiggs 1973, 312). It contains a list of the owners and managers of the fulleries:
L(ucio) VIRIO LVPO ET L(ucio) MARIO MAXIMO CO(n)S(ulibus)
CORPVS FONTANORVM Q(uod) EX S(enatus) C(onsulto) COIRE LICE(t)
PAI[—]IS(?)[—]II
P(ublius) [an]TONIVS CHA[ri]TON @ (= obitus)
[—]IVS C[–]EM[—]
[—]BIVS GRV[m]EN[ti]NVS
[—]ONIVS M[y]RISMVS
TI(berius) CLAVDIV[s] EPAG[a]T(h)VS EBS
T(itus) IVLIVS FELIX
M(arcus) CI[–]IVS DIONYSIVS
[—]S THALAMVS
VOLVSI[us] SATVRN[i]N(us)
I[—]VS ANTIN[—]
[- pet]RONIVS O[—]
L(ucius?) [pet]RONIVS MYRISMVS
L(ucius) AE[l]IVS ATHENODOR(us)
P(ublius) IVLIVS GEMINVS
P(ublius) IVLIVS GRVMENTINVS
[-?] PETRONIVS MYRISMVS IVN(ior)
[—]VLIVS SATYRVS
[—]AFIVS DALIS
[—]LIVS HILARVS
[—]ICCIVS MITHRES
[—]VIVS COGNITVS
[—]IVS HESPER
[—]S LIBERALIS
[— gru]MENTIN(us) IVN(ior)
[—]NVS
[—]CISSIM(us?)
[— ma]RTIALIS
[—] PAGATVS
[—]MVS VI
P(ublius) PETRON{l=i}VS FELIX
LVCIVS POMPEIVS QVINTINVS
G(aius) IVLIVS SATVRVS
N(a)EVIVS CATVLLINVS
Q(uintus) AVRELIVS VITALIO
CAECILIVS SOTERICVS
P(ublius) SEXTILLVS SEBERIANVS(!)
L(ucius) FLAVIVS ONESIMIANVS
Fullonica del Cardo
Regio I – Insula XIII – Fullonica I,XIII,3
Plan of the Fullonica del Cardo / Pietrogrande 1976, fig. 1
This tiny fullery was installed in a Hadrianic building (opus mixtum and latericium), with three shops along the Cardo. The masonry, the height of the floor and coins found below the floor indicate that this took place in the third century, or even later. It is a very small workshop, composed of two rooms only: the southernmost shop and the room behind.
In the entrance from the street to the front room is a shop-threshold. In the north-east corner was a basin, later replaced by two small brick walls, perhaps supporting a work-bench. In the same corner two terracotta pipes disappear below the floor, in the direction of the street. In the north-west corner a dolium defossum was found, in which liquids were stored.
In the south-east corner of the back room is a basin, to which water was piped from the south, through a lead pipe. In the north-east corner are two podia with a raised border to stop liquids. Along the north and east wall were four terracotta pressing-bowls, with thin walls serving as hand-rests on either side. Three have been preserved. A further basin was in the north-east corner.
The room with the pressing-bowls, seen from the south-west. / Photograph: Jan Theo Bakker.
The room with the pressing-bowls, seen from the west. / Photograph: Jan Theo Bakker.
Fullery in the Terme del Mitra
Regio I – Insula XVII – Fullonica I,XIII,2
The preserved ruins of the baths, from the south-west. / Photograph: Jan Theo Bakker.
This fulling establishment was installed in the service area of the Baths of Mithras.
Plan of the service area of the Terme del Mitra fullery. North is to the right. From Nielsen-Schioler 1980, fig. 1.
The niche in which the statue of Vulcanus was found is in the south-west part and marked X.
The fullery is in the north-east part and marked Ful/Ful. The mithraeum is in the north-west part.
To the east of the caldarium (A) is a public urinal. The urine was led through a lead pipe to the north-east part of the underground area, where it was collected in a vessel, and used in a tiny fullery consisting of two rooms with a few basins and benches.
The presumed fullery in the service area: the northern room seen from the south-west. / Photograph: Melissa Sellers.
The presumed fullery in the service area: the basins in the southern room. / Photograph: Eric Taylor.
The presumed fullery in the service area: the southern room seen from the east. / Photograph: Eric Taylor.
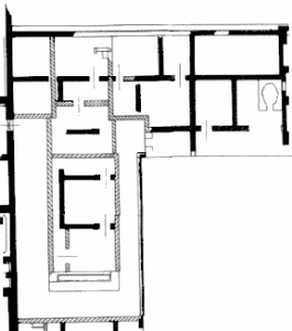
Hadrianic Fullery
Regio II – Insula XI – Fullonica II,XI,1
This large, Hadrianic fullery consists of two halls, separated by a wall with a door in the west part. Originally a tripartite entrance led to the building to the west. The north and south part were blocked already during the construction, the central part later.
The north hall consists of a courtyard with a porticus along the north, east and south side. In the south-west corner are a bench (d) and a basin (g). In the north-west corner a slightly older shrine was found, that was respected in the fullery. Some of its remains are an altar or base of tufa stones, and a black-and-white mosaic with the words:
EX VISO TI CLAV[dius —]
Plan of the Hadrianic fullonica. From Pietrogrande 1976, fig. 4.
The building seen from the north. / Photograph: Gerard Huissen.
The hall with the large basins seen from the north-west. / Photograph: Gerard Huissen.
Caseggiato della Fullonica
Regio II – Insula XI – Fullonica (II,XI,2)
In the south-west part of block II,XI an industrial building was found (excavations in 1912 and 1958-1959). It was built in the late-Trajanic or early-Hadrianic period (opus mixtum), and modified extensively (opus vittatum and latericium). The rooms are arranged around a central courtyard: to the south are four shops (I-IV), to the north, going from west to east, are two shops (V-VI), a corridor (VII) and two more rooms (VIII-IX).
The courtyard could be reached from the street to the west and from the east through very wide, tripartite entrances. The east entrance was later blocked. The floor of the courtyard and of corridor VII (probably also without a roof) was covered with opus spicatum. In the centre, a bit to the south, was a travertine fountain. Later the floor of the courtyard was covered with basalt blocks. Various structures and small rooms were added, such as a basis with a few treads (vittatum) in the north-east corner. The west entrance was narrowed, only the central part was then still used as entrance. Behind the northern part of the blocking a small workshop with two basins was installed. Behind the southern part is a room with a floor of bipedales. Near the door is the lower half of a dolium, possibly a urinal of the fullers, who worked elsewhere in the building.
The courtyard and the rooms to the west and north. From Pietrogrande 1976, fig. 3 (partial).
Workshops were also found in the northern rooms. In room V are remains of a work-bench. In the corridor seems to have been a basin. In room VIII we find a basin and a small round oven, in the floor, reached along a few treads. The oven may have been used for the dyeing of cloth.
Shops I and II. From Pietrogrande 1976, fig. 3 (partial).
The entrances to shops I and II were closed off with very thick walls, perhaps supporting the facade. They were removed in 1912. The entrances to shops III and IV were also closed off, with thinner walls. The floors and thresholds were raised. A fullery was installed in shop II. All doors of shop I were closed off, but later the room was connected with the building to the east, when a door was hacked out. In the northern part of shop IV is a large staircase, accessible from the street.
The only workshop of which the function is beyond doubt is the small fullery in room II. In the back part are two basins. Along the east wall were four pressing-bowls, one of which has been preserved. A raised border prevented liquids from reaching the south part of the room. Hand-rests have not been preserved. Not far away a pressing-bowl was found made of a marble capital.
The remains of the fullery, seen from the south-west. / Photograph: Jan Theo Bakker.
Fullery below the Tempio dei Fabri Navales
Regio III – Insula II – Fullonica (III,II,1-2)
Plan of the temple. After SO I.
The Temple of the Ship-Carpenters was built on top of a fullery. The fullery was excavated in the 1990’s, but it had been identified earlier, in 1938-9. It consisted of two courtyards, one behind and one below the temple, surrounded by rooms. The building phases could be dated to the second half of the first and to the second century AD (opus mixtum). It stopped functioning when the temple was built, during the reign of Marcus Aurelius or Commodus.
In the floor of the courtyard behind the temple are four very large basins, communicating with one another, and supplied with water through a lead pipe. The fullery contained at least fifty bowls: large pressing-bowls and smaller bowls in which detergents such as the creta fullonica (fuller’s earth) were stored. On either side of the pressing-bowls were small walls (hand-rests). There were no bowls along the back wall, where masonry bases were found, used for beating cloth. In the centre of the back wall is a niche, which contained a statue of a deity.
The later building is entered through a corridor between two shops. In front of the temple is a courtyard surrounded by a portico with brick piers. The portico near the entrance is extra wide, and supported by two additional piers. Here were found a black-and-white mosaic with geometrical motifs and a ship (much damaged), and inscriptions referring to the guild of the fabri navales (ship-carpenters or ship-builders). One of the inscriptions (on a base for a statue) is a dedication to a patron of the guild, P. Martius Philippus, from the late second century AD (AE 1955, 177):
P(ublio) MARTIO QVI[r(ina)]
PHILIPPO
CVRATORI VIAE PRAE[nesti]NAE
AEDILICIO CVRVLI V(iatori) Q(uaestori) A[b aer]ARIO
TRIBVNO FABRVM NAV[alium Port]ENS(ium)
PLEBES CORPORIS [fabrum naval]IVM
OSTIENS(ium) QVI[bus ex s(enatus) c(onsulto) coire li]CET
PATRONO [optim]O
S(ua) P(ecunia) P(osuit)
Plan of the area in front of the temple, with location of columns, bases and capitals. / From De Ruyt 1995, fig. 1.
The temple was built on a high podium, and was reached along marble steps. In the front part of the podium, below the pronaos, was a room that could be reached through a door in the left side wall. In front of the temple, in the courtyard, was a rectangular basin. The area behind the temple (c. 16 x 14.50) was flanked by porticoes and could be used by the guild as meeting-hall.
Ostia and Portus each had its own guild of ship-carpenters (analyzed by Konen). The guilds had hundreds of members, which suggests that ships were not only repaired in the harbours, but also built. The fabri navales must have worked together with several other guilds, such as that of the stuppatores (for more information see the Officina Stuppatoria (I,X,3)).
In the courtyard 47 columns, 20 bases and several capitals were found, not finished yet. They are of marble from the Greek island Thasos. On some of the columns the name Volusianus v(ir) c(larissimus) was found. They belong to the second half of the fourth or the first half of the fifth century: this man was either C. Ceionius Rufus Volusianus Lampadius, praefectus Urbi in 365-366 AD, or his nephew, praefectus praetorio in 429 AD. He may have lived in the Domus dei Dioscuri (III,IX,1). The columns were stored here to be used in building projects of Volusianus, one of which was the adjacent Basilica Cristiana, where columns with his name were used. The fact that many columns were never used may be related to the invasion by Gaeseric and the Vandals in 455 AD.
Left: The temple seen from the south-east (Schola del Traiano). / Photograph: Jan Theo Bakker.
Right: Reconstruction drawing by Italo Gismondi. Sopr. Arch. di Ostia, neg. B 1567.
Left: The remains of the fullery behind the temple, seen from the east. / From De Ruyt 2001, fig. 3.
Right: Marble columns, stored in the building in late antiquity. / Photograph: Jan Theo Bakker.
Left: Marble columns, stored in the building in late antiquity. / Photograph: Jan Theo Bakker.
Right: The inscription VOLVSIANIVC on one of the marble columns. / Photograph: Jan Theo Bakker.
Left: The excavation of the marble columns (1938). / Pensabene 1998, fig. 19.
Right: Funeral inscription (CIL XIV, 321) of P. Celerius Amandus. He died at the age of 18. The tools below the inscription (ruler, carpenter’s axe, compasses, two rudders) show that he was a shipbuilder. / Photograph: Eric Taylor.
Inscription from the P. Celerius Amandus tablet (above right):
P(ublio) CELERIO P(ubli) F(ilio) PAL(atina) AMANDO
D(ecreto) D(ecurionum) DECVRIO ADLECTVS HVNC
DECVRIONES FVNERE PVBLICO EF
FERENDVM CENSVERVNT EIQVE
HONORES OMNES DECREVERVNT
ET TVRIS P(ondo) XX PATER HONORE VSVS
IMPENSAM REMISIT VIXIT ANNOS XIIX
MENSES XI DIES XIIX P(ublius) CELERIVS P(ubli) LIBERTVS
CHRYSEROS ET SCANTIA LANTHANVSA PARENTES
FECERVNT SIBI ET SVIS LIBERTIS LIBERTABVS POSTERISQVE
EORVM
Fragment of an inscription mentioning the Fabri Navales. / Photograph: Jan Theo Bakker
Fullonica su Via degli Augustali
Regio V – Insula VII – Fullonica V,VII,3
Left: Plan. From Pietrogrande 1976, fig. 15.
Right: Drawing. From Pietrogrande 1976, fig. 20.
This fullery was excavated shortly before the Second World War and in 1957-1958. The original building is Trajanic or early-Hadrianic (opus mixtum), the present fullery was installed during the reign of Marcus Aurelius (opus latericium).
The northern part of the workshop consists of a large hall, with four very large basins in the floor, 0.90 deep and communicating with one another. The hall was reached through a door in the east wall. Around the basins is a porticus with a floor of opus spicatum. In the piers on the west side are small travertine blocks with square or U-shaped holes, at a height of approximately 2.00. In these holes wooden beams were inserted, for hanging out clothes.
There were 35 pressing-bowls with small walls (hand-rests) on either side, along the west, north and east wall, and near the large basins. Small basins are on the floor near the south wall. The water-supply and drainage took place through terracotta and lead pipes.
To the south of the hall are two small rooms, at first accessible from the hall, but later from the south only, through a door in the western room. In the floor of the eastern room are two terracotta vessels and a basin.
Detail of the large basins, from the north-east. / Photograph: Jan Theo Bakker.
Detail of the large basins, from the south-east. / Photograph: Jan Theo Bakker.
Detail of the pressing-bowls along the north past of the east wall, from the south. / Photograph: Jan Theo Bakker.
Related Buildings
Regio II – Insula VIII – Caseggiato II,VIII,7
Plan of the building. After SO I.
This seems to have been an industrial building, like buildings II,VIII,8 and 9. It is to the north and west of the Four Small Temples (II,VIII,2).It was excavated in the years 1885-1886 by Lanciani. An oval structure in the east part may have been a basin. In the south part a long basin is found (5.30 x 0.68), that had marble revetment on the inside. The building is probably Hadrianic. It has been suggested that it was a fulling mill.
The oval structure in the east part. / Photograph: Jan Theo Bakker.
Regio II – Insula VIII – Caseggiato II,VIII,8
Plan of the building. / From Paschetto 1912, fig. 88.
This seems to have been an industrial building, like buildings II,VIII,7 and 9. It is to the west of the area in front of the Four Small Temples (II,VIII,2). It was excavated in the years 1885-1886 by Lanciani. A small basin is found in a little room in the north-west part. There was a long basin against the west wall (10.87 x 1.20). The building is probably Hadrianic. It has been suggested that it was a fulling mill.
The north part of the building, seen from the south. In the background, to the right, is the Mitreo delle Sette Sfere. / Photograph: Eric Taylor.
The little room in the north-west part of the building, seen from the south. / Photograph: Eric Taylor.
Regio II – Insula VIII – Caseggiato II,VIII,9
Plan of the building. / From Paschetto 1912, fig. 88.
This building, partially excavated at the end of the 19th century, is directly to the east of the Grandi Horrea (II,IX,7), across the road. The walls are of Hadrianic opus mixtum. In the centre of the building is a large round structure. The scanty remains consist of a tufa circle, without podium. It has been suggested that it was a basin, and that the building was a fulling mill.
The round structure may also have been an oven. On an old plan a basin, a floor of basalt blocks and a round object (a millstone or kneading-machine?) seem to be indicated, two rooms to the north. Therefore the building may also have been a bakery. Excavation of the north part of the building will be helpful.
A number of rooms across the street (part of a row of rooms along the east side of the Grandi Horrea) also had floors of basalt blocks.
The remains of the oven (?), seen from the west. / Photograph: Jan Theo Bakker.
The substructure of the staircase in the central part of the building, seen from the south-east. / Photograph: Eric Taylor.
Regio IV – Insula V – Caseggiato IV,V,3
Plan of the building. After SO I.
This building has been dated to the reign of Marcus Aurelius (161-180 AD). In the south-east part are two rooms, that may have been shops. In the central part is a small courtyard with a basin set against one of the walls. To the south are two rooms. In the west part is a room with a narrow basin lining the walls. The building has been called a fullery.
The room with the basin. / Photograph: Jan Theo Bakker.
The room with the basin. / Photograph: Jan Theo Bakker.
Originally published by “Ostia: Harbour City of Ancient Rome“, republished with permission for educational, non-commercial purposes.















































